Газовая труба через гостиную

Автор
Сообщение
На сайте c 15.03.2018
Сообщений: 25

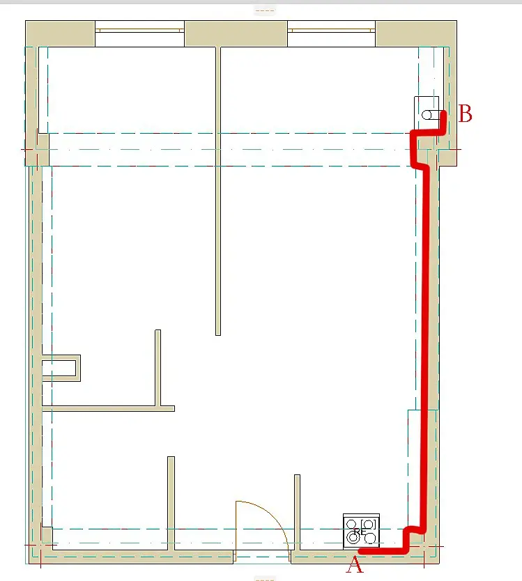
Планировка с асимметричными балками От точки А до точки Б должна пойти газовая труба , через гостиную. Только дизайн потолка особенно в области балки рядом с котлом не как не получается. Может кто то сталкивался с такой проблеммой , котел не можем поставить на кухне, и так очень мало места..

Сам файл  https://drive.google.com/open?id=1vOSma_zwHIm35yQWUGqjMA9uFqQLDwHl 

На сайте c 23.01.2016
Сообщений: 909

Котел изначально стоит в "В"?

Ничего нового вам тут не посоветовать - банально зашивать картоном, выдумывая короба. Только учтите, что это незаконно, труба должна быть с прямым доступом. Поэтому, хотя бы согласуйте всё до зашивки.

На сайте c 15.03.2018
Сообщений: 25

Konstantinus

Вот собственно в этом и дело, никакого короба не должно быть , должно всё быть с прямым доступoм...

Цитата Konstantinus:
Котел изначально стоит в "В"?
не не изначально, заказчики так хотят

На сайте c 23.01.2016
Сообщений: 909

А где сейчас?

Для него же дымоход (вент-канал) нужен, в новом месте он есть?

На сайте c 15.03.2018
Сообщений: 25

не где это 0-евое состояние , хотя я сказала что должно быть в кухне несмотря на маленькое помещение,

но они настаивали на своем .

дымоход в санузле рядом с входной дверью ...это тоже будет проблемой

На сайте c 23.06.2009
Сообщений: 2331
Ukraine
Цитата anna45:
Вот собственно в этом и дело, никакого короба не должно быть , должно всё быть с прямым доступoм...

возможно в мебель впихнуть или панели какие-то, но для этого нужно понимать что вообще на той стене будет, должно быть как минимум планировочное решение. На крайняк можно опустить потолок, а вдоль стены сделать нишу с подсветкой в которой по мимо подсветки будет труба... но опять же тут нужно плясать от дизайна. Исходя из того что представлено как базовая информация, я бы просто сделал нишу между стеной и потолком и все... и доступ есть и трубы не видно. Это там еще балка бетонная???))

На сайте c 23.05.2011
Сообщений: 4827
объясните нубу зачем все это делать унутри дома?
На сайте c 17.12.2009
Сообщений: 8093
РЕГИОН 13

План расстановки мебели и оборудования имеется?

И вообще, это квартира или дом?

На сайте c 25.02.2009
Сообщений: 2753
Липецк
Цитата anna45:
не не изначально, заказчики так хотят

заказчики хотят, но газовщики будут против, вероятно

На сайте c 15.03.2018
Сообщений: 25

X_N

да но если ко всему этому и добавить трубу  дымохода, то получится под балкой потолок будет 2500...

Зондер

вот примерный план ратановки мебели,

это маленькая  квартира

На сайте c 23.05.2011
Сообщений: 4827

Цитата anna45:

это маленькая квартира

ну ,тогда, если они кухню так резко переносят, то можно и гибкими шлангами в стяжке газ прокинуть им видно по фиг

На сайте c 23.06.2009
Сообщений: 2331
Ukraine
Цитата anna45:
да но если ко всему этому и добавить трубу  дымохода, то получится под балкой потолок будет 2500...

труба? От котла? Так может от котла вентиляцию лучше выбить на улицу???... это глупо тянуть трубу хренову тучу метров, еще и при в ходе в вент канал нужно будет вентилятор ставить скорее всего что бы тяга была.

На сайте c 15.03.2018
Сообщений: 25

X_N

да действительно,уже несу какую то чушьsmiley-lol.gif

На сайте c 23.01.2016
Сообщений: 909

Так в каком месте сейчас стоит котел от застройщика? Возле колонны у окна, как на самом первом плане?

Если так, то перенести его никуда не получится.

На сайте c 15.03.2018
Сообщений: 25
Цитата Konstantinus:

Так в каком месте сейчас стоит котел от застройщика? Возле колонны у окна, как на самом первом плане?

Если так, то перенести его никуда не получится.

нет, вообще то думаю  она предназначена в кухне, просто заказчики хотят ставить возле окна
На сайте c 23.01.2016
Сообщений: 909
Цитата anna45:
нет, вообще то думаю

Т.е. вы толком не знаете, где сейчас стоит котел?

И что значит в "кухне"? Кухня у застройщика, наверно, там, где сейчас кровать?

Что-то позапутали вы.

На сайте c 15.03.2018
Сообщений: 25

Цитата Konstantinus:
Цитата anna45:
нет, вообще то думаю

Т.е. вы толком не знаете, где сейчас стоит котел?

Кухня у застройщика там, где сейчас кровать?

я же написала,  это новый дом, там нулевое состояние.как то так

На сайте c 23.01.2016
Сообщений: 909
Какая разница, что он новый. На запроектированное расположение котла это не влияет.
Фото как раз доказывает, что котел стоит в кухне, где сейчас у вас спальня. И дышит в обозначенную у вас на плане вент-шахту.
99,35% что не разрешат его оттуда перенести.
На сайте c 23.05.2011
Сообщений: 4827
Цитата anna45:
там нулевое состояние

вот нулевое состояние

7434efd8c2d854b8a9290890773d8afb.jpeg

а это уже с конкретными планировками от застройщика

На сайте c 23.01.2016
Сообщений: 909
И второе. Получается, что у вас жилая комната расположена под кухней верхнего этажа (если не последний этаж) А это тоже нарушение норм. Да и по-человечески не очень. Ваши клиенты будут желать сладенько отсыпаться в воскресенье, а сверху будут лить воду в раковину и елозить табуретками по плитке.
Читают эту тему: