WIP Dogeva (интерьерные визы)

Автор
Сообщение
На сайте c 25.10.2009
Сообщений: 998
Сочи
Цитата Dogeva:
А спецификации отделочных материалов? Количество плитки и т.д. Там тоже ценник бывает космос.

Это тоже в ведомости. Т.е. на листе с плиткой - раскладка плитки, название и количество. Ну и примечания всякие.

А в ведомости лист "стены" - там плитка, обои, краска, панели какие-нибудь, плинтуса и прочее. Там уже с ценами, ссылками. По желанию их можно выдратьsmiley-biggrin.gif

На сайте c 28.02.2017
Сообщений: 2977
Omsk
Та самая штукатурка, которая 2см и отдельной стеной, она появляется в чертежах на этапе монтажа или отделки? Или ещё доп.чертёж с обмерами после монтажа, где внезапно и появляется штукатурка?
На сайте c 25.10.2009
Сообщений: 998
Сочи

План монтажа перегородок - это план, по которому строители будут размечать стены. Т.е. там не надо штукатурку показывать, они запутаются. Чистая толщина блоков. Каким-нибудь красным цветом с большим восклицательным знаком тут же можно указать размеры, которые нужно выдержать в чистоте (например, под ванну или инвизибл двери). Тут же указываете места, где нужно строго выдержать угол в 90 градусов (ванна, кухня, что-то еще).

А потом можно сделать отдельно лист "план оштукатуривания стен", где указать эти 20 мм, и написать, что они проектные, мол, если стена от застройщика пляшет, то накидывайте больше штукатурки богу штукатурки.

А потом "план после перепланировки". Там уже проектные чистые размеры, ну и площади для БТИ.

На сайте c 28.02.2017
Сообщений: 2977
Omsk

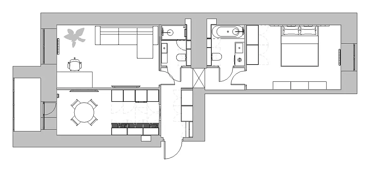
Покритикуйте планировку =)  

Душ 1200х800, ванна 1700х700, стиралка под столешницей в ванной (фе конечно, вечно она всю красоту портит).

Примерный план до:

Изначально прикидывала санузлы так, но потом смутило что для душа поддон нужно сильно поднимать чтобы провести канализацию к унитазу. И у раковины получается проход 68см, тесновато наверно.

Кстати где вы рисуете варианты планировок? Мне пока удобнее и быстрее в фотошопе, с привязкой 1см = 1рх.

На сайте c 13.01.2021
Сообщений: 39
Кладовку бы, гардеробную. Очень мало места для хранения.
Вместо одного санузла.
Зачем и душ, и ванная, и два унитаза для одной семьи из 2-3 человек?
На сайте c 24.05.2009
Сообщений: 10880
Цитата Dogeva:
Покритикуйте планировку =)  

Света, ты когда открывание дверей проектируешь представляй в голове как ты будешь ходить. В гостиную дверь лучше вовнутрь, все равно стена пустая. А у тебя получается пересечение с дверью в СУ, что почти всегда недопустимо. Да и пользоваться очень неудобно, когда человек из гостиной захочет воспользоваться СУ. Это надо ему выйти, закрыть дверь Потом еще сделать пару шагов назад, чтобы не попасть на радиус открывания двери в СУ.

Тоже самое и с дверь в ванную. Представь себя ночью сонную, ты открыла дверь, прошла вперед, закрыла за собой дверь. Потом подвинулась, открыла дверь в ванную и только потом туда зашла. Слишком много ненужных телодвижений. Я бы вообще дверь в спальню перенес в проем перед СУ. Не вижу смысла в этой кишке, а так небольшая доп. площадь к спальне, которую можно обыграть.

За остальное сказать сложно. Под каждого человека все индивидуально. Например, одним будет плюсом отдельная гостиная, которую в теории можно использовать, как спальню для гостей. Другим это не нужно, тогда можно объединить два помещения в одно, а кабинет вынести на лоджию.

На сайте c 27.01.2007
Сообщений: 431
Екатеринбург
Цитата Dogeva:

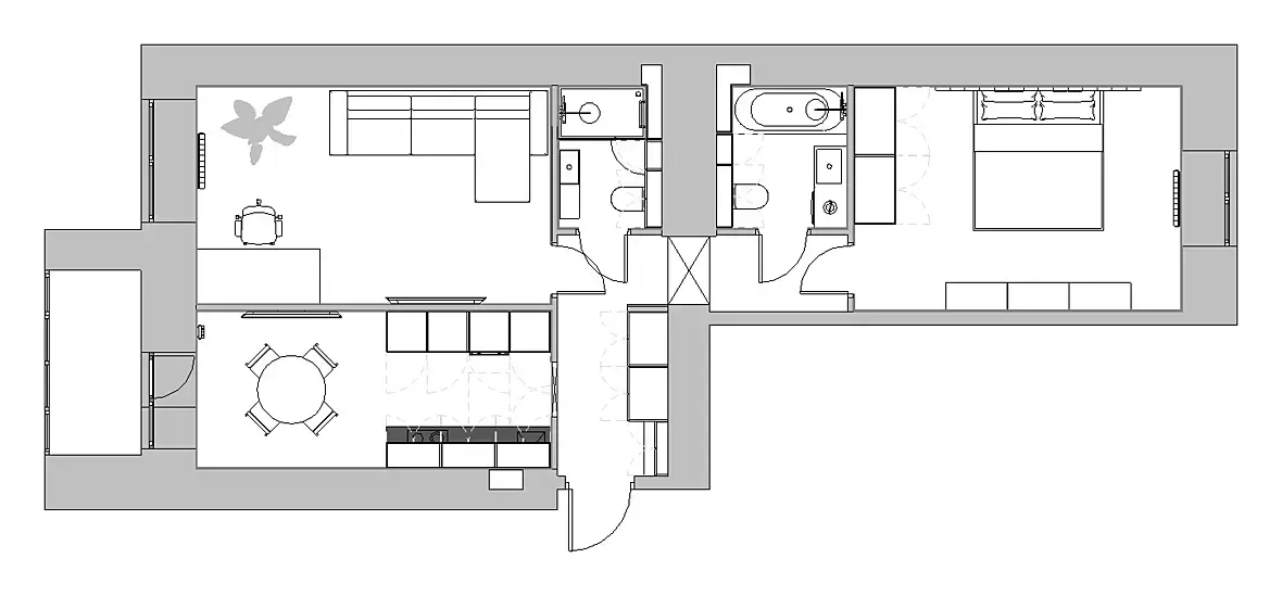
Покритикуйте планировку =)  

Душ 1200х700, ванна 1700х700, стиралка под столешницей в ванной (фе конечно, вечно она всю красоту портит).

Примерный план до:

Изначально прикидывала санузлы так, но потом смутило что для душа поддон нужно сильно поднимать чтобы провести канализацию к унитазу. И у раковины получается проход 68см, тесновато наверно.

Кстати где вы рисуете варианты планировок? Мне пока удобнее и быстрее в фотошопе, с привязкой 1см = 1рх.

Душевую больше нужно хотябы 800, лучше 900

На сайте c 24.05.2009
Сообщений: 10880
Цитата OK_models:
Зачем и душ, и ванная, и два унитаза для одной семьи из 2-3 человек?

Потому что туалетом семья из двух-трех человек может захотеть воспользоваться одновременно несколько раз в день. Это очень удобно. Плюс гостей не пускать в хозяйский СУ. Все таки, место довольно интимное.

Кладовое помещение для редко используемых вещей всегда можно найти. В новостроях часто продают кладовки где то на паркинге, либо в коридоре на этаже. Правда такое возможно приобрести через застройщика, когда дом строится. На худой конец в городе есть складские помещения под аренду. Туда можно свозить подобные вещи.

На сайте c 14.06.2012
Сообщений: 16837
Москва

Если можно двигать мокрые зоны, я б кухню с кабинетом местами поменял. И вместо второго туалета лучше кладовку-постирочную сделать.
 

Цитата grdesigner:
На худой конец в городе есть складские помещения под аренду. Туда можно свозить подобные вещи.

Ну можно тогда и с гостями не дома встречаться. А иначе что это за гости, что в свой толкан их стрёмно пустить отлить?
У нас 4 сезона в погоде, вещей и обуви дофига. В складские помещения не набегаешься. Плюс если ребёнок, то вообще приплыли. Не, без кладовки не катит.
 

Цитата Dogeva:
Кстати где вы рисуете варианты планировок? Мне пока удобнее и быстрее в фотошопе, с привязкой 1см = 1рх.

Ну автокад же. Самая простая и понятная прога. Какой фотошоп,.. ты чего?)))))

На сайте c 10.03.2024
Сообщений: 409
Цитата OK_models:
Кладовку бы, гардеробную. Очень мало места для хранения. Вместо одного санузла. Зачем и душ, и ванная, и два унитаза для одной семьи из 2-3 человек?

Цитата grdesigner:
Потому что туалетом семья из двух-трех человек может захотеть воспользоваться одновременно несколько раз в день. Это очень удобно. Плюс гостей не пускать в хозяйский СУ. Все таки, место довольно интимное. Кладовое помещение для редко используемых вещей всегда можно найти. В новостроях часто продают кладовки где то на паркинге, либо в коридоре на этаже. Правда такое возможно приобрести через застройщика, когда дом строится. На худой конец в городе есть складские помещения под аренду. Туда можно свозить подобные вещи.

А я тоже, голосую за кладовку, вместо второго унитаза.

 Куда мужик свои дрели и удочки положит?

Хотя моё мнение можно не учитывать, я в квартиру спать и есть прихожу, живу на даче в 15 минутах ходьбы, от квартиры. Там всё есть, и кладовая, и гараж, и мастерская 40 квадратов, не считая просто навесов подо всё, включая пилораму. Как жить в квартире без всего этого я не представляю, умер бы от тоски, там ничего делать нельзя, не пилить, не строгать, не сверлить, не стучать,  только есть и спать, а ещё санузел использовать))). Никакой созидательной деятельности кроме как компьютере.

На сайте c 24.05.2009
Сообщений: 10880
Цитата Mihanik68:
 Куда мужик свои дрели и удочки положит?

Для того чтобы картину повесить или что то подкрутить с головой хватает небольшого кейса с инструментами размерами с обувную коробку, который может храниться в шкафу прихожей.

Цитата Mihanik68:
Никакой созидательной деятельности кроме как компьютере.

Кто то созидает головой, кто то руками.

Судя по Вашим требованиям, Вы в любой квартире будете себя чувствовать ограниченным.

На сайте c 28.02.2017
Сообщений: 2977
Omsk
Цитата grdesigner:
Света, ты когда открывание дверей проектируешь представляй в голове как ты будешь ходить.

Да, про эти двери уже думала, разверну.

Цитата grdesigner:

Я бы вообще дверь в спальню перенес в проем перед СУ. Не вижу смысла в этой кишке, а так небольшая доп. площадь к спальне, которую можно обыграть.

По-моему что так кишка, что так =(  Но две двери для шумоизоляции санузла получше будут

Цитата ANGY!:

Душевую больше нужно хотябы 800, лучше 900

Ой, очепятка у меня. Душ на 800

Цитата Yehat:

Ну автокад же. Самая простая и понятная прога. Какой фотошоп,.. ты чего?)))))

Ну я в фотошопе рисую планировки лет 10, а ревит вот только начала изучать. В фотошопе парой движений всё двигается и ресайзится прямоугольничками, а в ревите пока ресайзнешь, пока прогрузится сложное семейство, там стена прикрепилась и всё поплыло... Пока туда только начистовую переношу.

На сайте c 24.05.2009
Сообщений: 10880
Цитата Dogeva:
По-моему что так кишка, что так =(  Но две двери для шумоизоляции санузла получше будут

Кишка, которая относится к коридору и к спальне это две большие разницы. В первом случае она вообще ничего полезного не несет, а во втором это уже часть спальни. Как минимум, если будут гости то можно СУ пользоваться скрытно, хоть голым пройтись туда-обратно. Можно на стене зеркало ростовое сделать, чтобы наряды разные подбирать, а не бегать в прихожую.

А звук что через одну, что через две двери все равно будет слышен в спальне через смежную стену.

На сайте c 14.06.2012
Сообщений: 16837
Москва
Цитата grdesigner:
с головой хватает небольшого кейса с инструментами размерами с обувную коробку,

Один мало-мальский нормальный перфоратор занимает места сильно больше этой коробки. Плюс шуруповёрт (и 2 аккумулятора + зарядное), плюс ящик с инструментами и мелочевкой. Это мы только шурупы в стену собрались закрутить. Две ножовки, паяльник, запасные лейки и шланги для сантехники, даже паяльнику надо коробочку чтобы там припой, канифоль, подставка лежали, он один коробку для обуви займёт.
Пылесос, 2-3 дорожных чемодана, несколько сумок поменьше, несколько демисезонных курток, 2-3 пуховика, обуви пар по 7-8 это минимум. Всю эту верхнюю одежду умножай на 2-3 по количеству человек. Это я только начал перечислять основные вещи, которые уже не входят ни в какой из шкафов в этой квартире. А дальше штаны, футболки, свитера, нижнее, несколько комплектов постельного, и тд и тп. Женщине под красоту помимо всего прочего ещё отдельный комод надо.
А ты походу один живёшь )) Точнее спишь в квартире. Живёшь где-то на работе и в кафе. Тем более зимняя одежда и обувь в Одессе не нужна. Ну а где-то можно вообще весь год в одних шортах и шлёпках ходить.
Я когда один жил на съёмной квартире, то мне хватало метрового двустворчатого шкафа в коридоре, и он даже не был полный.

 

Цитата Dogeva:
В фотошопе парой движений всё двигается и ресайзится прямоугольничками

попробуй автокад, там всё сильно проще и удобней чем в шопе

На сайте c 16.12.2010
Сообщений: 1257
EU
Цитата Dogeva:

Покритикуйте планировку =)  

Душ 1200х800, ванна 1700х700, стиралка под столешницей в ванной (фе конечно, вечно она всю красоту портит).

Примерный план до:

Изначально прикидывала санузлы так, но потом смутило что для душа поддон нужно сильно поднимать чтобы провести канализацию к унитазу. И у раковины получается проход 68см, тесновато наверно.

Кстати где вы рисуете варианты планировок? Мне пока удобнее и быстрее в фотошопе, с привязкой 1см = 1рх.

Оооо, как удачно я зашел!

0 - планировки а Архикаде/Ревите, после их систем привязок остальное просто мусор и издевательство. Можно и в Автокаде, но это скорее для тех, кто привык в нем чертить вообще все

1 - делить основное помещение на кухню и гостиную в данному случае худшее из возможного. Вместо неплохой комнаты имеем две клетушки и классику хрущобы.

2 - в санузлах, думая о душевых, нужно помнить, что 5...10 см скушает - фактически - раздвижка и иные виды шторок/ограждений/ю нейм ит. Стройные юноши и девушки, тем не менее, смогут вполне удобно принять душ в кабинке от 80х80, но уважаемые люди могут ощущать себя стесненно. В идеале нужно от 90 см. Ванна 170х80/180х80 - идеально. Если не лезет по длине, но встает асимметричная, скажем 150х100 - тоже очень хорошо. Что же касается инсталляции, то slim-решения не так чтобы сильно дороже "обычных" и при желании все можно упаковать в короб до 150 мм с учетом плитки и клея. Это если неудобно обойтись стандартными 200 мм.

3 - раковина над стиралкой - ужасно и отвратительно, без обид. Многие не согласятся, но я бы предпочел отправить ее на кухню. Особенно в том случае, если п.1 - клетушки вместо большого помещения - обязательное требование заказчика. Вообще, по масштабу и габаритах вот этого вот всего в санузлах есть вопросы и лучше бы судить обо всем, видя образмеренный план.

4 - открывание дверей, как уже сказали, но это уже мелочи. И да, двери должны открываться внутрь комнат, если тому нет реальных и обоснованных препятствий. Санузлы - я бы предпочел наружу, но у нас не общественное заведение с нормами эвакуации, и все эо вопрос рациональности и удобства.

На сайте c 14.06.2012
Сообщений: 16837
Москва
Цитата gunslinger:
1 - делить основное помещение на кухню и гостиную в данному случае худшее из возможного. Вместо неплохой комнаты имеем две клетушки и классику хрущобы.

Я тоже думал про объединение, но щас формально получаем двушку, и типа же есть гостевой туалет. Тут надо сперва понимать, для кого квартира и сколько человек будут жить. Если есть ребёнок, то без второй спальни (пусть даже в виде кабинета с диваном) не обойтись.

На сайте c 16.12.2010
Сообщений: 1257
EU
Цитата Yehat:
Цитата gunslinger:
1 - делить основное помещение на кухню и гостиную в данному случае худшее из возможного. Вместо неплохой комнаты имеем две клетушки и классику хрущобы.

Я тоже думал про объединение, но щас формально получаем двушку, и типа же есть гостевой туалет. Тут надо сперва понимать, для кого квартира и сколько человек будут жить. Если есть ребёнок, то без второй спальни (пусть даже в виде кабинета с диваном) не обойтись.

Я соглашусь, но в этом случае разумнее сделать кухню-гостиной на 2/3 площади и оставшееся выделить под детскую. Благо имеем 2 окна

Как-то так https://prnt.sc/PdCqmZy3KcbO  и заодно под санузел еще отжать, чтоб стиралка влезла

1 - делить основное помещение на кухню и гостиную в данному случае худшее из возможного. Вместо неплохой комнаты имеем две клетушки и классику хрущобы.

А без нужды в детской я бы начал с этого  https://prnt.sc/Cy3FTsPhaVvW 

P.S. Благодарность переводить в DOGEcoinsmiley-biggrin.gif кошелек скину

На сайте c 14.06.2012
Сообщений: 16837
Москва
Цитата gunslinger:
Как-то такhttps://prnt.sc/PdCqmZy3KcbO    и заодно под санузел еще отжать, чтоб стиралка влезла

Даже дверь подвинуть левее, там шкафы влезут, а то на гардеробную так никто и не заморочился)) Узковата канеш комната, но койка влезет, кости можно будет кинуть.

Но! Коль расширяем мокрую зону (увеличивая туалет), так лучше уже всю кухню наверх переместить, а вторую комнату вниз. И тогда оптимально ширину помещений отрегулировать. 

На сайте c 24.05.2009
Сообщений: 10880
Цитата Yehat:
Один мало-мальский нормальный перфоратор занимает места сильно больше этой коробки.

Так вот ты какой сосед долбящий стены по выходным. ))

Цитата Yehat:
Плюс шуруповёрт (и 2 аккумулятора + зарядное), плюс ящик с инструментами и мелочевкой. Это мы только шурупы в стену собрались закрутить. Две ножовки, паяльник, запасные лейки и шланги для сантехники, даже паяльнику надо коробочку чтобы там припой, канифоль, подставка лежали, он один коробку для обуви займёт.

Я искренне не понимаю зачем это все надо. Для того чтобы открутить или забить хватит набора отверток, ключей, дрель. И мелочевки всякой. Это так для скорого ремонта, когда вот жопа ночью произошла или в выходной день. Для всего остального есть мастера и есть онлайн магазины. Вот зачем лейки и шланги? Ну протек шланг, перекрыл кран, пользуешься вторым СУ. Вызвал мастера или заказал с онлайн магазина, тебе в течении пары дней прислали, заменил. Что то посерьезнее, вызвал электрика/сантехника тебе за день починили.

По роду деятельности любых специалистов по несколько человек на профессию. Для тех кто с ремонтами не связан, ну есть же объявления муж на час. Тем более если что то ломается, то не ранее, чем раз в пять лет. Для чего держать душевую лейку или шланг столько времени?

Цитата Yehat:
2-3 дорожных чемодана

Арендуется кладовка на складе или в том доме где живешь и туда вывозится все что используешь пару раз в году. Либо что имеет сезонность. Даже у нас в городе любой не бюджетный новострой имеет кладовки либо в аренду, либо на продажу в самом начале. Некоторые на парковочных местах ставят большой шкаф и в нем держат хлам всякий.

Цитата Yehat:
А ты походу один живёшь ))

Не

Цитата Yehat:
Точнее спишь в квартире. Живёшь где-то на работе и в кафе.

У меня частный дом. smiley-biggrin.gif

Цитата Yehat:
Тем более зимняя одежда и обувь в Одессе не нужна.

Та вот, к сожалению совсем не так. Климат крайне противный, нужная и теплая зимняя и летнее. У нас из-за моря сильная влажность. В -5 можно просто охренеть от холода, особенно если ветер с моря. Мне в Москве при -20 было не так холодно, как дома в Одессе. Еще у нас если выпадет снег, то он через пару дней тает и на улице начинается грязевое месиво. Поэтому тут что то надо и от холода и от грязи. А еще зимой обычно обмеры делаешь, чтобы к весне уже был дизайн-проект готовый и стартовать. Так вот в холод в помещении в голом бетоне то еще удовольствие. Комплектов одежды много разной.

Просто в нашей дискуссии каждый мерит по своему. Я эту квартиру вообще вижу для молодой семьи. Которые еще не успели обрасти кучей вещей. Поэтому вполне без кладовки могут прожить. А позже поменяют на большую и со своими потребностями.

На сайте c 25.10.2009
Сообщений: 998
Сочи
А задача-то какая? Состав семьи какой? Вторую кровать не вижу, поэтому я бы вообще все стены снесла, кроме туалетных.
Читают эту тему: