WIP Dogeva

Автор
Сообщение
На сайте c 28.02.2017
Сообщений: 2977
Omsk

У плоскокрышных домов есть водостоки, просто их обычно прячут в стены, т.е. там нет потока с крыши на стены

 

На сайте c 28.02.2017
Сообщений: 2977
Omsk
Не, вариант с лопатой мне как-то не нравится. Я за максимально ленивые решения
На сайте c 09.01.2008
Сообщений: 5269
Санкт-Петербург
Цитата etransmit:
а как же эксплуатация в зимних условиях? Если вода падающая с козырька прилетает на отмостку, то она разбрызгивается под определенным углом, если угол отмостки выдержан - то на фасад попадает минимальная часть. Если же такие капли будут регулярно прилетать на поверхности камней, то поведение брызг не предсказуемо. Возможно их будет меньше.. возможно, они будут все на фасаде.

Что-то мне подсказывает, если вода будет ударяться об гальку, которая обтекаемой формы, то брызги так же не будут попадать на фасад здания. У нас годами дождь попадает на стены и что? )

Если будет зима, снегом заметет гальку, то зимой и дождя-то нет (Не считая Питера), а если это Питер, то и снега тут не будет на гальке зимой, а если будет, то снег и погасит брызги.

Я сужу не как специалист, коли полный ноль в этом, а с точки зрения обывателя, который может так же подобное хочет сделать и для меня это реализуемо, а все остальное совковая паника без закрепления расчетами.

Ну и повторюсь, не мало же картинок построенных домов, где все это как-то сделали и вряд ли не думали об осадках.

На сайте c 28.02.2017
Сообщений: 2977
Omsk

Немного бредовая идея. А если водосток сделать снизу? Смотрим на красную линию

На сайте c 09.01.2008
Сообщений: 5269
Санкт-Петербург
Цитата Dogeva:
Немного бредовая идея. А если водосток сделать снизу? Смотрим на красную линию

Можно и ливневку сделать вокруг дома

Опять таки на мой непрофессиональный взгляд =)

На сайте c 28.02.2017
Сообщений: 2977
Omsk
... дождевую воду с ливневок собирать и юзать для полива газона и туй smiley-rolleyes.gif Желательно в автоматическом режиме
На сайте c 09.01.2008
Сообщений: 5269
Санкт-Петербург
Цитата etransmit:
вот тот вариант который предлагался! Ладно.. для дачи сойдет!

Хы, ну вот же =)

Да и почему для дачи. Что в этом такого плохого? )Все ж то же самое по сути остается. А даже если будут капли попадать на стену, ну что этому пластику, металлу, камню, плитке будет? ) Мне кажется без гальки отмостка даже быстрее пробиваться каплями будет, чем с ней.

На сайте c 01.02.2014
Сообщений: 3086
Milky Way

По поводу красивых отливов на скатных крышах, вот:

http://rch-a.com/wp-content/uploads/2013/11/%D0%9A%D1%80%D1%8B%D1%88%D0%B0-%D0%B1%D0%B5%D0%B7-%D1%81%D0%B2%D0%B5%D1%81%D0%B0-%D0%A1%D0%BA%D1%80%D1%8B%D1%82%D0%B0%D1%8F-%D0%B2%D0%BE%D0%B4%D0%BE%D1%81%D1%82%D0%BE%D1%87%D0%BD%D0%B0%D1%8F-%D1%81%D0%B8%D1%81%D1%82%D0%B5%D0%BC%D0%B0-%D0%A0%D0%B5%D0%B0%D0%BB%D0%B8%D0%B7%D0%B0%D1%86%D0%B8%D1%8F.jpg  (краткое пояснение. по краю крыши идет труба. которая закрыта декором (пластиной), а слив осуществляется по плоской трубе, которая проходит за облицовкой в стене. труба не выступает за стену и за крышу)

http://profidom.com.ua/images/fimage/11_b40d01b8c80b0806ea48eb6a7cd7befc.jpg 

А по поводу плоской крыши в наших широтах - имхо бред.

На сайте c 25.06.2007
Сообщений: 1503
Россия
Цитата Dogeva:
Про окна. Что, прям такая плохая идея окон в санузлах и подсобках?

Не проблема сделать окна в санузлах, если отопительная система позволяет поддерживать комфортную температуру. Проектировали и ванны с огромными окнами, все ок, тепло и сухо. Но у вас, я так поняла, газа на участке нет, в таком случае отопление может быть дорогостоящим, тогда есть смысл сэкономить и на окнах и на отоплении.

На сайте c 28.02.2017
Сообщений: 2977
Omsk

Газа нет, но должен быть. Иначе у нас не топятся, зимой -35 как нечего делать. Отопление думаю теплыми полами делать, в том числе в санузлах + скорее всего полотенцесушители. ТП либо отдельно поверх плит перекрытия, либо как часть УШП, тут уже считать надо будет 

Там получается 5 окон - бойлерная, кладовка, санузел, прачечная, санузел. Вот из кладовки наверно нужно выкинуть? 

Цитата akkoxe:

По поводу красивых отливов на скатных крышах, вот:

http://rch-a.com/wp-content/uploads/2013/11/%D0%9A%D1%80%D1%8B%D1%88%D0%B0-%D0%B1%D0%B5%D0%B7-%D1%81%D0%B2%D0%B5%D1%81%D0%B0-%D0%A1%D0%BA%D1%80%D1%8B%D1%82%D0%B0%D1%8F-%D0%B2%D0%BE%D0%B4%D0%BE%D1%81%D1%82%D0%BE%D1%87%D0%BD%D0%B0%D1%8F-%D1%81%D0%B8%D1%81%D1%82%D0%B5%D0%BC%D0%B0-%D0%A0%D0%B5%D0%B0%D0%BB%D0%B8%D0%B7%D0%B0%D1%86%D0%B8%D1%8F.jpg   (краткое пояснение. по краю крыши идет труба. которая закрыта декором (пластиной), а слив осуществляется по плоской трубе, которая проходит за облицовкой в стене. труба не выступает за стену и за крышу)

http://profidom.com.ua/images/fimage/11_b40d01b8c80b0806ea48eb6a7cd7befc.jpg  

А по поводу плоской крыши в наших широтах - имхо бред.

Звучит хорошо, а это вот прям так просто можно пойти и купить? Меня в чатике пугали что готового ничего нет, нужно все самим колхозить из металла

Загуглила. Есть подозрение что эта штука стоит как крыло самолета

На сайте c 28.07.2013
Сообщений: 1615
KZ17
Цитата Dogeva:
Звучит хорошо, а это вот прям так просто можно пойти и купить? Меня в чатике пугали что готового ничего нет, нужно все самим колхозить из металла

Вот как вариант на скорую руку:

https://eurohouse.prom.ua/p429309414-vodostoki-galeco-stal.html 

Да и собственными силами можно сделать, если подрядчики рукастые будут, там же нет нано технологий). Как пример, опять же с просторов нета..

 

P.S. Только вот вопрос, а нужны вам лишние расходы, по эксплуатации, на электроэнергию?    

На сайте c 28.02.2017
Сообщений: 2977
Omsk

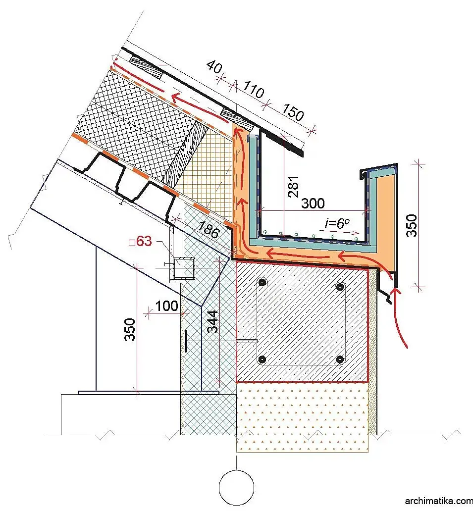
Во, нашла правильную схему. Только у меня получается не будет этого карниза-лепнины, кровля до самого низа

___________________________________________________

Перерисовала без угла. Как-то совсем тесно получается на типичном участке 20*40, видимо нужно искать более квадратный участок

Вот даже не знаю... Как-то в разы унылее и не так "закрыто-интимно" без угла получается:

Напомню, с углом было так:

На сайте c 24.05.2009
Сообщений: 10881
Мне угол не нравится тем, что воруется пространство, а унылость фасада вагончика можно обыграть чередованием материалов или декоративными выступами. Может фронтон. И планировки, опять же, на мой взгляд были интересней. В этом исполнении, как то скучно, без идеи. Коридор: налево жилые, направо тех. помещения.
На сайте c 28.02.2017
Сообщений: 2977
Omsk
Цитата grdesigner:
Коридор: налево жилые, направо тех. помещения.

Это не баг, а фича. Способ максимально отгородиться от окон соседей. Концепт таков: угловой участок с жилыми окнами на юг, туи по внутреннему краю забора, что-то лиственное и / или хвойное за забором. Так получается что между этим участком и соседским будет метров 30 "пустоты", а в типичной ситуации с участком посреди от окон дома до соседских будет 6 метров. Брр

Угол дома можно поддержать углом крыши и терассы, так и терасса получится побольше и с перекрытием

На сайте c 01.06.2010
Сообщений: 983
Тольятти

А другие варианты конфигурации дома и планировки не рассматриваются? По мне, с углом получше было, но тоже не супер. Без угла напоминает магазин в небольшом поселении, без обид. Сейчас технологии позволяют строить любые формы, может стоит ими воспользоваться? Ленточное остекление, плоские кровли, железобетонный каркас отлично сочетаются между собой, тем более, что вы хотите ушп. Плоская кровля дает больше преимуществ, чем недостатков, можно эксплуатировать летом, оборудовать зону барбекю или просто летний солярий, что позволяет выбрать меньший участок и меньше денег вкладывать на обустройство, озеленение, забор и тд. Системы дренажа, гидроизоляции и тд не должны быть проблемой, надо только спецов хороших найти.

Отапливаться сейчас можно и без газа(я бы и сам старался делать систему отопление максимально независимую), современных решений с высоким кпд хватает: от тепловых насосов до солнечных коллекторов с большим теплоаккумулятором(но не для Омска, наверное, только если летом воду греть). С газом свои заморочки, а именно: ежегодная чистка котлов, ежегодное повышение тарифов, возможные проблемы с поставкой газа(у меня был случай, когда счетчик забился из-за примесей и котел встал в морозы под 20, пришлось вызывать аварийку, ставить перемычку и потом платить за несколько дней по "тарифу", а не счетчику), периодические поломки котла от накипи, окислов и тд. Ко всему прочему ещё надо протянуть трубу на участок, сделать проект, которые могут делать только газовики и оформить всё это и заплатить денег за всё. Сколько сейчас не знаю, но раньше было много(мне называли цену 40 000р за проект подключения второго котла в пару к уже установленному, вместо бойлера. Работы там 0, т.к. вывод и гибкая подводка уже на месте и подключены к бойлеру).

Дренаж делать в любом случае надо по отмостке, не будет грязи и возможных проблем с морозным пучением грунта(если он у вас этому подвержен). Ёмкость для сбора воды тоже стоит поставить при возможности, как минимум экономия на поливе в долгосрочной перспективе. Тем более, если участок не распланирован и нет фундамента, то можно всё сделать за раз, один раз загнав технику. 

Вообще, когда встаёт вопрос о стройке, лучше сразу всё продумать, просчитать не только стоимость стройки, а ещё и последующего обслуживания, хотя бы лет на 10 вперед и сделать выводы, т.к. возможно, что-то, что на первый взгляд кажется дорогим, принесет экономию в перспективе 5-10 лет, будет более надежным и независимым, чем общепринятые решения. 

На сайте c 28.02.2017
Сообщений: 2977
Omsk

Truan, планировки я где-то выкладывала, вот https://3ddd.ru/forum/thread/show/wip_dogeva/2#post1235715 

Серьезно предлагаете прятать дом и окна от соседей, а потом залазить на крышу и барбекюшничать / загорать у них на глазах? smiley-crazy.gif

УШП тоже под вопросом, уж больно смущает меня вопрос ремонта коммуникаций. Да и скорее всего недешево выйдет на такую площадь, тут уже нужно считать. А вагончик с плоской кровлей будет напоминать магазин вдвойне. 

Подключение газа за 40К это если участок в городе / деревне, а если в коттеджном поселке, то весь пакет коммуникаций в среднем 800К (благо центральная вода, канализация, газ). Но при перепадах температур от 0 до -40 зимой все кроме газа вылетает в еще большую копеечку

На сайте c 01.06.2010
Сообщений: 983
Тольятти

Всё зависит от архитектуры, любой вопрос можно решить грамотным проектированием. Про вагончик я не говорил, посмотрите работы модернистов 20 века, что-то я вагончиков среди них не видел.) 

УШП надо доверять только мастерам, которые сталкивались с этим и имеют хорошие рекомендации. Если всё грамотно сделают, то чему там ломаться? Зато всё делается одним этапом и сама ушп выступает в роли огромного аккумулятора тепла, что положительно сказывается в аварийные моменты. 

Вы не опечатались с 800к? Космическая сумма какая-то. Центральная вода и канализация не такая необходимая вещь. + потом ещё платить местной ук по надуманным предлогам. 

Чтобы газ и всё остальное не вылетало в копеечку при перепадах температур, надо строить энергоэффективный дом, исключая мостики холода, щели, некачественные работы и материалы, использовать рекуператор и современные технологии(те же теплые полы эффективнее радиаторов, насколько я знаю), учитывать при проектировании розу ветров и прочие подобные моменты. Тогда можно говорить о экономии. Самое простое - дом из блоков + газ. Поначалу дешево(относительно опять же), а потом могут начаться разные нюансы(дом дал усадку и появились микротрещины, утеплитель не так приколхозили и дует по стыку двух плит, из вентканалов в ванной и кухне дует холодным воздухом и ещё много моментов). Кого-то устраивает платить 10-20 000р в месяц за отопление, тепло и ладно, а то, что 2/3 суммы вылетает в трубу никто особо не думает. И какой эта сумма будет через 5-10 лет никто не знает, т.к. за последние 10 лет газ подорожал очень заметно, в 2008 году тысяча кубов стоила 1640р, сейчас 5000р.

На сайте c 28.02.2017
Сообщений: 2977
Omsk

Не опечаталась. Вот к примеру из одного объявления "Оплачено за газ 240000, свет 120000, дорога 55000. Вода+канализация 130000" Если смотреть сильно за городом или вообще в деревне, то тогда да, будет дешевле, но загород - не мой вариант. 

Даже мастера ошибаются, даже самые качественные трубы со временем ломаются. Плюс довольно много споров относительно долговечности утеплителя в УШП, на 100% меня пока ни одна из теорий не убедила.

Центральная вода и канализация мастхэв. У нас довольно специфичная вода, тут есть, а через 2 метра нет, плюс ее пригодность для употребления местами крайне сомнительна. 

Вы не думайте что я тут такая городская девочка, сижу в квартире и фантазирую. 

На сайте c 01.06.2010
Сообщений: 983
Тольятти

Вопрос пригодности воды снимается фильтрами, которые в любом случае должны быть. А вот если воды нет местами, то уже ничего не поможет) Но всеравно слишком дорого отдавать 800к. Это прайс у поселка такой или напрямую от поставщиков услуг? 

Споры в стройке по-моему всегда есть, без них никуда. Надо просто решить для себя, взвесить все риски и выгоды. УШП дорого, но, как по мне, оно того стоит. Огромный плюс - скорость и комплексность работ. 

На сайте c 21.12.2008
Сообщений: 4

Dogeva,

по поводу строительства такого дома на участке:

покупаете участок, идете в администрацию районную или городскую в зависимости где находится участок, просите у них разрешение на строительство, и они вам должны предоставить планировку где будет выделена зона для застройки на вашем участке.

да нормативы общие есть, по 3 метра от края участка итд, но все равно идти в управление или отдел архитектуры и просить разрешение на строительство нужно, если вы пойдете туда с уже готовым проектом, или хотя бы планировкой Вашего участка, с размерами и привязками к участку то 99% что разрешат и выдадут нужное вам разрешение на строительство. кстати земля между Вашим участком и дорогой, если ее никто не приобретет, можно будет взять в собственность, в аренду или выкупить, дело Ваше.

По поводу ванной и детей:

если проектируете свой дом, тем более с двумя ванными комнатами, то да, ванную лучше предусмотреть, душевая мастхэв но как говорит жена иногда хочется поваляться в ванной, правда ребенку сейчас полтора года, и пока у нее такой возможности не представилось))) понятное дело повзрослеет и тогда хоть обваляйся там.

про одноэтажный дом:

никого не слушайте, хотите одноэтажный, стройте одноэтажный, мне кажется в русских людях просто генетически заложено, что если строю дом, то блин только два этажа, не привыкли у нас что один этаж тоже может смотреться красиво, эстетично и дорого-богато))

и да, хотите строить с углом как Вам хочется, то стройте с углом, это Ваше решение, Вам там жить, и если Вам нравится, то пусть так и будет, а слушать других людей что это некрасиво, неудобно итд, как говорится на вкус и цвет все фломастеры разные.  Другой вопрос техническая возможность и конструктив.

Читают эту тему: