WIP Dogeva

Автор
Сообщение
На сайте c 22.06.2016
Сообщений: 98
Харьков
По архитектуре в общем - пока не дом мечты. Основное - 1-Мне кажется достаточно смелым решением в основных помещениях делать острые углы, особенно когда это не остекление. 2-Коридор длинючий темный. Если оставлять принципиальную схему - было бы хорошо дать второй свет. 3 - Формообразование очень спорное. Симбиоз двух объемов можно выполнить более интересно. Односкатная кровля над основным объемом, мне кажется, в этом случае - не отсюда. С кровлей нужно работать еще. 4 - Терасса, да, маловата. пс. для белее конструктивного разговора желательно нанести на план размеры. Обозначить окна и двери
На сайте c 28.02.2017
Сообщений: 2977
Omsk

Я пока не созрела до обращения к архитектору. Вот набалуюсь в максе и фотошопе, куплю участок, тогда и серьезных дяденек можно будет беспокоить

Цитата marten_kun1001:
По архитектуре в общем - пока не дом мечты. Основное - 1-Мне кажется достаточно смелым решением в основных помещениях делать острые углы, особенно когда это не остекление. 2-Коридор длинючий темный. Если оставлять принципиальную схему - было бы хорошо дать второй свет. 3 - Формообразование очень спорное. Симбиоз двух объемов можно выполнить более интересно. Односкатная кровля над основным объемом, мне кажется, в этом случае - не отсюда. С кровлей нужно работать еще. 4 - Терасса, да, маловата. пс. для белее конструктивного разговора желательно нанести на план размеры. Обозначить окна и двери

1) можно в принципе распрямить дом и сделать все комнаты прямоугольными. Думаете лучше будет? Мне почему-то хочется нестандарта в геометрии, но возможно это нужно перебороть

2) был вариант со вторым светом, но тогда коридор при ширине 1,2м и длине 10м был 6 метров в высоту =( Такой колодец

На сайте c 22.06.2016
Сообщений: 98
Харьков
Dogeva, Ну нестандартная геометрия - это не всегда острый угол (это простое решение может со временем вызвать дискомфорт). Можно добиться нестандартности и с помощью геометрии где все углы 90. Сейчас планировка откровенно неинтересная.  Попробуйте для начала уйти от симметрии главного фасада, сам дом сделать менее растянутым - это избавит вас от длинючего коридора, который к тому же делит пополам некрасиво помещение кухне-гостинной.
На сайте c 24.08.2016
Сообщений: 40
Astrakhan, Russia

по планировке: -если откажетесь от угла, то получите больше полезной площади;

- коридор просто длинющий и абсолютно бесполезный, убрав его возможно добиться единого пространства гостиной и кухни, плавно переходящего в спальни;

- из гаража как и при входе должен быть предусмотрен тамбур;

- уровень пола гаража, как правило, ниже на 150-300 мм, и пол гаража должен быть выполнен под наклоном;

- кладовка у вас по плану , мне кажется, большевата.

- один санузел, можно предусмотреть ближе к бойлерной и входу, это удобнее с точки зрения коммуникаций и в момент когда полон дом гостей (как правило гостевой санузел должен располагаться в гостевой зоне, изолированной от спален).

по архитектуре:

- убрав угол,выровняется стена, увеличиться полезная площадь, и будет возможность объединить эти помещения  снаружи сделать террасу, предусмотрев над ней легкий навес и деревянного каркаса;

- либо сделать эту стену сплошным остеклением если позволяют климатические условия региона проживания

 Не стандарта в геометрии можно добиться и за счет использования разных материалов, да и к тому же "нестандарт"  чаще всего оправдан желанием по максимуму использовать площадь застройки, и зачастую ,в плане коммуникации таких "нестандартных"домов приходиться выложить за неординарность кругленькую сумму.

На сайте c 25.06.2007
Сообщений: 1503
Россия
Dogeva, чем перекрывать дом планируете? И да, дом без участка планировать нет никакого смысла, сначала нужно получить ГПЗУ для вашего участка, в котором будут определены требования относительно % застройки участка, расстояние от границ земельного участка для дома и для хозяйственных построек, расстояние до красных линий и т.д. Да и форма участка может оказаться не такой, какую вы предполагаете. Пока действительно только побаловаться в фотошопе и максе:)
На сайте c 28.02.2017
Сообщений: 2977
Omsk

По поводу участка и требований. Ну нет у нас таких сложностей, честно-честно. У нас степь с ровным рельефом. В чистом поле обычно нарезают квадраты и прямоугольники. Требований относительно внешнего вида, материалов или расположения на участке тоже нет, только общие пожарные нормы

Что касается планировки. Было нарисовано стопицот вариантов, абсолютно разных. Такая вытянутая форма лучше всего вписывается во все требования (на форумхаусе такие дома называют "сосулька" =) 

1) мастер-спальня с гардеробной зоной и своим санузлом

2) к мастер-санузлу довольно много требований, по факту это практически единственное расположение, которое устраивает

 

3) отдельная просторная прачечная

4) две максимально одинаковых дополнительных комнаты (пока кабинеты, потом возможно детские)

5) к кухне тоже очень много требований - минимализм, основная часть у стены подвесная, встроенные колонны с холодильником, духовкой и входом в кладовку

 

6) вход из гаража в прихожую или тамбур перед прихожей, т.к. это на самом деле будет основной вход в дом

7) окна комнат в одну сторону, на юг или юго-восток

При соблюдении этих условий получается что коридор-наименьшее зло

Вогнутый угол навеян вот этим проектом. Но делать полностью стеклянную стену в нашем климате низзя 

http://www.magazindomov.ru/2012/06/13/minimalistskij-dom-v-shvejcarii/ 

Немного прошлых вариантов, которые подходили по условиям

На сайте c 25.06.2007
Сообщений: 1503
Россия
Цитата Dogeva:
По поводу участка и требований. Ну нет у нас таких сложностей, честно-честно

Градостроительные нормы действуют даже в Омске:) Если у вас нерезают участки как угодно в чистом поле, то это конечно облегчает дело, но где-то к этим участкам коммуникации должны проходить или как?

На сайте c 04.09.2008
Сообщений: 15101
Уфа

один санузел должен быть в дневной зоне, куда гостям ходить

с твоими планировками моционы перед сном можно не делать smiley-biggrin.gif

и ставь размеры)

На сайте c 28.02.2017
Сообщений: 2977
Omsk

Коммуникации обычно тянут уже потом, когда все построились и собрали денежку. Сперва там в лучшем случае есть столбы с электричеством

Какие гости, вы о чем тут? Мы семья если не социофобушек, то мизантропов точно =) А родственники и до общего санузла дотопают, не обломятся

Я планировки в фотошопе рисую, по пикселям =( Там размеры только если вручную ставить

Что касается "дневных зон" и иже с ними. Нет у нас такого четкого разделения, именно поэтому двухэтажный дом с дневным и ночным этажами нам не подходит. Я выросла в двухэтажном доме и вот это разделение на зоны мне не нравится, как-то лестница сильно разграничивает. Перемещаться по одному этажу, пусть и на большие расстояния, гораздо комфортнее

На сайте c 04.09.2008
Сообщений: 15101
Уфа

https://clip2net.com/s/3R6OubL 

 вот например. одноэтажный дом с разделением на зоны, дневную и ночную, или оно же- общественная и приватнаяя например на свою личную территорию мало кого пускаю. даже родственников

На сайте c 28.02.2017
Сообщений: 2977
Omsk

Все сильно зависит от привычек семьи. Я примеряю на себя, есть жесткие требования - по кухне, мастер-спальне и санузлам, по входу, а есть абсолюно неважные - разделение на зоны например. У меня был вариант с гостевым санузлом рядом с бойлерной и пустой комнатой для запасного большого санузла на случай детей, но как-то вариант с одним мастер-санузлом и одним общим оказался ближе

Мысли такие - мастер-санузел должен быть со входом только из мастер-спальни. На случай детей или гостей с ночевкой нужен полноценный санузел. Получается либо 2 больших санузла + гостевой туалет, либо просто 2 санузла. Учитывая негостеприимные привычки семьи логично оставить просто 2 санузла

На сайте c 04.09.2008
Сообщений: 15101
Уфа

6,8 это что? может их с санузлом местами поменять

есть такая штука- эргономика. тебе надоест километры наматывать)

На сайте c 28.02.2017
Сообщений: 2977
Omsk

Не поменяешь. Кухонная кладовка со входом из кухни =) Мастхэв 

Ну блин, какие километры? У меня сейчас в однушке-студии 6 метров от рабочего стола до двери в санузел

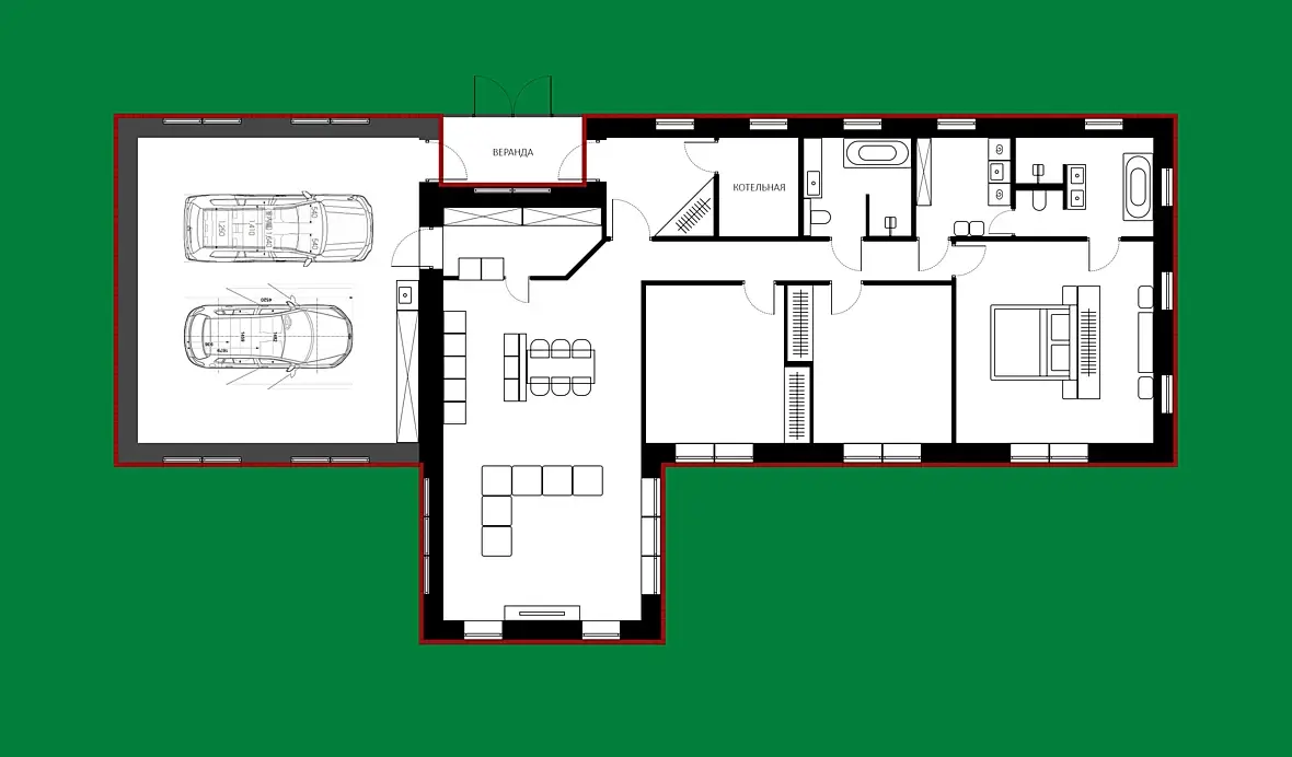
Вариант без угла, с размерами 

На сайте c 04.09.2008
Сообщений: 15101
Уфа

у тебя от гаража до спальни 15 м в одну сторону)

рабочий треугольник на кухне сколько?

и начерти уже где нить в нормальной программе. лан хоть не в ворде делаешь

На сайте c 28.02.2017
Сообщений: 2977
Omsk

Уууу, злая черная кошка! Нормальная программа это что например?

Можно подумать я 10 раз за день буду бегать из гаража в спальню! Сейчас до машины вообще 6 этажей вниз и 60 метров в сторону

На сайте c 04.09.2008
Сообщений: 15101
Уфа

автогад, арчик, скетчап, там вроде тоже размеры есть arcon, microsoft  visio. да в том же максе  можно с димастером размеров наставить.

 з.ы я белая и пуфыстая. у тебя искаженное восприятие действительности)

На сайте c 28.02.2017
Сообщений: 2977
Omsk

Это мне теперь еще всяких автогадов изучать? smiley-sad.gif 

Про пушистость никто не сомневался. Знаю я вас, чесать не перечесать 

Только прикидываетесь гладкошерстными...

На сайте c 04.09.2008
Сообщений: 15101
Уфа

визио проще

 з.ы так так же теплее)

На сайте c 22.06.2016
Сообщений: 98
Харьков
а почему один этаж? сложить этот план пополам и готово. почти) надо 2 этажа п.с. автокад нужная вещь.
На сайте c 28.02.2017
Сообщений: 2977
Omsk

Цитата marten_kun1001:
почему один этаж? сложить этот план пополам и готово

Патамушта гладиолус! 

Не укладывается наша жизнь в 2 этажа, нам нужен одноэтажник

Цитата etransmit:
По американски!!

Не, у американцев какая-то ерунда с гостиными. Одна для семьи, фэмилирум, другая для гостей, ливингрум. Плюс прихожей нет

Про крышу. В теории она должна выглядеть как-то так, с заворотом на одну сторону. Но такое я видела только на картинках. Это вообще практично? Красиво? Как быть с водостоком?

Из реальной практики нашла вот эту статью, но тут получается крыша отдельно, стена отдельно, между ними как положено водосток. А мне же нравится как на картинках, когда просто загиб! 

http://karkashouse.info/print :page,1,45-ustroystvo-krovli.html

Для тех, кто не видел мою задумку:

Читают эту тему: