Посоветуйте по планировке

Автор
Сообщение
На сайте c 14.06.2012
Сообщений: 16829
Москва
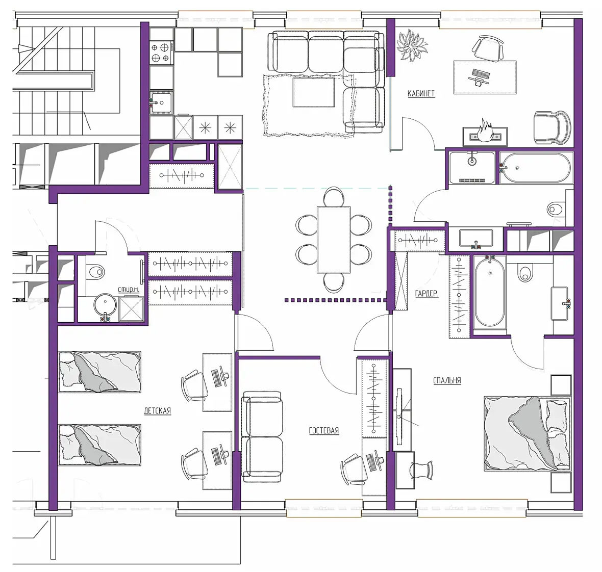
Цитата Spark:
но проходная гардеробная - так себе вариант тоже

И мебель заносить сложно будет

На сайте c 25.10.2009
Сообщений: 998
Сочи

Хз, может как-то так. Гостевую с кабинетом нельзя совместить? Гостиная бы тогда более человечьих размеров вышла.

На сайте c 28.09.2006
Сообщений: 4446
Москва / Дубай
Цитата Agapova:

Хз, может как-то так. Гостевую с кабинетом нельзя совместить? Гостиная бы тогда более человечьих размеров вышла.

По зонированию красиво, спасибо за хороший вариант

На сайте c 14.06.2012
Сообщений: 16829
Москва
Я б ещё вместо ванн сделал широкие душевые кабины.
На сайте c 14.11.2008
Сообщений: 141

С минимальными переделками так можно: Блок с ванной разделить и откусить кусок от другого санузла а то жирно очень))  И в спальне получается и гардероб и санузел полноценный с огромной душевой

На сайте c 22.09.2006
Сообщений: 1908
Оттуда

вот такой вариант,,)

На сайте c 14.06.2012
Сообщений: 16829
Москва
Вы мокрую зону увеличили)) правая ванная комната.
На сайте c 22.09.2006
Сообщений: 1908
Оттуда

Yehat

неа, всё в старых размерах( из автокад файла,да и по  скану), контуры мокрых зон я не трогал,,,

На сайте c 28.09.2006
Сообщений: 4446
Москва / Дубай
Цитата holoduk:

вот такой вариант,,)

Спасибо, тоже хороший. Только проход в кабинет все же лучше из гостиной, а не через спальню, но это мелочи

На сайте c 28.02.2017
Сообщений: 2977
Omsk
Цитата Agapova:

Хз, может как-то так. Гостевую с кабинетом нельзя совместить? Гостиная бы тогда более человечьих размеров вышла.

Мне вот тоже сразу захотелось гардероб вместо входа в спальню, прям просится туда. Только может гостевую и кабинет махнуть местами, в зависимости от шумности в кабинете. И вместо стены сделать стеклянные перегородки со шторой, чтобы больше света в столовой зоне 

На сайте c 22.09.2006
Сообщений: 1908
Оттуда

Spark

Читают эту тему: