Посоветуйте по планировке

Автор
Сообщение
На сайте c 28.09.2006
Сообщений: 4446
Москва / Дубай

Посоветуйте по паре вопросов насчёт планировки.

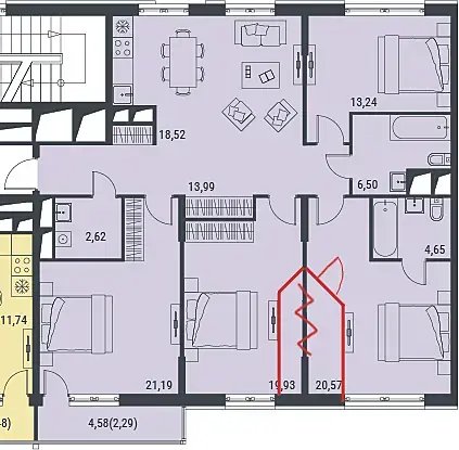
Нужны 3 спальни (родительская, детская и гостевая) плюс рабочий кабинет (комната площадью 13,2).

1. Есть ли возможность организовать гардеробную в мастер-спальне (правая нижняя с с/у). Но обязательно чтобы в спальне умещалась кровать со спальным местом 2 м шириной, т.е. габаритом порядка квадрата 2,2 м. В идеале без разрушения имеющихся стен, но если по-другому нельзя, то можно и поломать что-нибудь.

2. Как лучше всего зонировать кухню-гостиную? Есть обеденный стол 1600х800, в идеале обеспечить к нем доступ со всех сторон, т.е. не приставлять к стене.

Нужно побольше места хранения на кухне, что-то не придумаю, где вообще его организовать. Холодильник планируется Side-by-side, т.е. его ширина около 1220 мм, если не ошибаюсь, так что ставить его скорее всего в нишу 0,62х1,78 в коридоре и добивать всю нишу шкафами до потолка. Выводы под мойку в нижнем левом углу кухни, плюс сантехнический люк на стенке 1,44 м длиной.

3. Ну и в целом какие ещё мысли по планировке-зонированию smiley-wink.gif

Вот есть ещё картинка продажной планировки, она не совсем точная в площадях, но на ней точно показано положение всей сантехники.

На всякий случай ссылка на dwg:

https://www.dropbox.com/s/a2079gjeietj9rt/Plan.dwg 

Всем заранее спасибо за советы.

На сайте c 27.02.2010
Сообщений: 3664
Херсон,Украина

Сюда прям просится гардеробная:

Или Вам мини-раздевалку, в смысле, а не шкаф?

На сайте c 28.09.2006
Сообщений: 4446
Москва / Дубай
Ну шкаф понятно. Я имел в виду именно отдельную отгороженную комнатку.
На сайте c 17.03.2020
Сообщений: 3708
spb
сколькими сортирами готовы пожертвовать? утолщения - это монолит?
На сайте c 28.09.2006
Сообщений: 4446
Москва / Дубай
Цитата madYuppie:
сколькими сортирами готовы пожертвовать? утолщения - это монолит?

Да, утолщения - монолит.

Жертвовать количеством сортиров не хотелось бы. Но в мастер-ванной можно ванну заменить на душ, сократив её площадь в целом.

Вроде и комнаты все большие, но из-за идиотской квадратной формы кусок от таких комнат отгрызть сложно.

На сайте c 05.01.2020
Сообщений: 8153
Цитата Spark:
Есть ли возможность организовать гардеробную в мастер-спальне (правая нижняя с с/у).

с имеющимся с/у - нет. гардеробная не войдет. а изголовье ты ни в какую сторону другую не развернешь. 

разве что к окну, но это не спасет особо. кровать - квадрат. 

только уменьшать с/у и убирать из него ванну/душик

Цитата Spark:

2. Как лучше всего зонировать кухню-гостиную? Есть обеденный стол 1600х800, в идеале обеспечить к нем доступ со всех сторон

тут много вариантов, по низу стена планируется? частично можно ведь гостиную закрыть и к ней колонны с техникой разместить. или стол туда вниз по плану. тут сходу не скажешь, крутить надо, думать.

вариативность тут приличная

Цитата Spark:
тавить его скорее всего в нишу 0,62х1,78 в коридоре

не вариант. не набегаешься. под рукой все должно быть. да и холодильник в коридоре... такое.. 

с покупкой что ле тебя поздравить можно? smiley-smile.gif

На сайте c 28.09.2006
Сообщений: 4446
Москва / Дубай
Цитата Катерина135:
с покупкой что ле тебя поздравить можно?

Типа того. Ну т.е. покупка-то давнишняя, ключики вот выдали наконец.

Ещё и ремонт от застроя неожиданно приличный, жалко даже дербанить всё. Но никак сюда с таким расположением стен не помещается всё, чего хочется smiley-biggrin.gif

На сайте c 05.01.2020
Сообщений: 8153
Цитата Spark:
Типа того. Ну т.е. покупка-то давнишняя, ключики вот выдали наконец.

ой, я так и знала )))) да ты молодец какой! smiley-smile.gif  мы тоже ключи получили буквально неделю назад, но места мало. а на 4шку мы пока не заработали ) а я еще и к центру привыкла ) вощем, губу пока закатала 

еще раз поздравляю ) 

в общем, кухню я бы не стала в коридоре размещать, пока не убедилась бы, что в отведенную под это дело площадь все не уместится. 

Цитата Spark:
Ещё и ремонт от застроя неожиданно приличный, жалко даже дербанить всё. Но никак сюда с таким расположением стен не помещается всё, чего хочется

так все равно все переделывать, ту же электрику под себя...

На сайте c 27.02.2010
Сообщений: 3664
Херсон,Украина

smiley-crazy.gif

На сайте c 05.01.2020
Сообщений: 8153
Цитата Spark:
1. Есть ли возможность организовать гардеробную в мастер-спальне (правая нижняя с с/у)

а знаешь есть такой прием, когда кровать вперед выдвигается, и гардеробная за ней размещается.

делится на две части, заход слева и справа от кровати. можно в этом ключе подумать. смотря, какое расстояние от стены до окна, чтоб не перекрывать его. или перекрыть на размер шторы, которая на окно заходит. ширина комнаты позволяет такое решение 

На сайте c 28.09.2006
Сообщений: 4446
Москва / Дубай
Цитата Катерина135:
а знаешь есть такой прием, когда кровать вперед выдвигается, и гардеробная за ней размещается.

Думал насчёт такого варианта, но там у окна простенок 1100, т.е. надо тогда одну фрамугу окна как-то захватывать

Ну если только не до стены с окном делать перегородку, а действительно оставлять сквозной проход за кроватью

На сайте c 05.01.2020
Сообщений: 8153
Цитата Spark:
Ну и в целом какие ещё мысли по планировке-зонированию

тут зависит от того, насколько ты готов глобально ломать с учетом готовой отделки. планировка хорошая, прямоугольная, есть места для хранения. но можно и улучшить многое. готов ли ты вход в ванне перенести и тд это ж за собой все потянет 

На сайте c 28.09.2006
Сообщений: 4446
Москва / Дубай

Думал ещё какой-то такой вариант без разбора имеющихся стен, но проходная гардеробная - так себе вариант тоже.

На сайте c 05.01.2020
Сообщений: 8153

Цитата Spark:
Думал насчёт такого варианта, но там у окна простенок 1100, т.е. надо тогда одну фрамугу окна как-то захватывать

на размер перекрытия шторы можно. визуально это будет ок 

Цитата Spark:

Ну если только не до стены с окном делать перегородку

конечно. будет два отсека для тебя и супруги.

по моим прикидкам г-образные полки войдут. по функционалу вместительность будет хорошая 

по ванне только посмотреть еще надо вход 

Цитата Spark:
но проходная гардеробная - так себе вариант тоже.

тут ее надо бы на середине уменьшить. но толку от нее никакого. и проход где-то 700,да? не очень грамотно.. 

а ты уверен, что тебе матрас на 2метра нужен? 1,8м вполне хороший габарит. 

На сайте c 28.09.2006
Сообщений: 4446
Москва / Дубай

Цитата Катерина135:
конечно. будет два отсека для тебя и супруги.

по моим прикидкам г-образные полки войдут. по функционалу вместительность будет хорошая 

по ванне только посмотреть еще надо вход 

В таком варианте тогда прикроватные тумбы уходят. В целом они не особо нужны, но телефон куда-то заряжаться положить всё равно нужно. Если только в стенке за кроватью какие-то небольшие ниши с розетками предусмотреть

Цитата Катерина135:
тут ее надо бы на середине уменьшить. но толку от нее никакого. и проход где-то 700,да? не очень грамотно..

Проход 900 до двери и 700 дальше вдоль нижнего шкафа. Кажется, достаточно, но не знаю, вживую конечно надо прикидывать

На сайте c 05.01.2020
Сообщений: 8153

Цитата Spark:
но телефон куда-то заряжаться положить всё равно нужно

если стиль современный, изголовье отодвигаешь, делаешь короб из мдф, с торцов полки, нишки, туда же розетки, мелочь и тп. это решаемо, тут конфигураций тьма 

Цитата Spark:

Если только в стенке за кроватью какие-то небольшие ниши с розетками предусмотреть

можно и в стенке. но стенку придется широкой делать. от окна и так места немного 

а еще ж удобно должно быть. если ты туда выключатели/переключатели заводить будешь. 

Цитата Spark:
и 700 дальше вдоль нижнего шкафа.

я про эти 700, да. тут проще просто шкафы сделать вдоль стены и все )) если по такому принципу ) 

На сайте c 17.12.2009
Сообщений: 8091
РЕГИОН 13

Спальня с лоджией проблемная. Там прачку под прихожую и под гардероб спальни можно дербанить.

А шкаф на входе - вообще треш. Замкнет кого-нибудь)

В спальне с ванной та же байда.

Телевизор в головах через перегородку - это даже думать не стоит.

На сайте c 19.03.2013
Сообщений: 132
US




Дата выдачи:
06.08.2024 17:58:08


Пожизненный бан
А одной спальней пожертвовать никак? Или трое детей?
На сайте c 05.01.2020
Сообщений: 8153
Цитата Зондер:
Спальня с лоджией проблемная

из-за двери на лоджию? ее б под гостевую. 

серединную под детскую. 

Цитата Зондер:
Телевизор в головах через перегородку - это даже думать не стоит.

это про что? 

На сайте c 17.12.2009
Сообщений: 8091
РЕГИОН 13
Цитата Катерина135:
из-за двери на лоджию?

Нет, из-за размещения шкафа у двери. И из-за отсутствия нормального гардероба при такой площади

Цитата Катерина135:
это про что? 

Если у тебя в головах через перегородку телевизор, то...

Квартирка, при всей ее площади, имеет довольно узкие моменты. Самая крамольная часть - это, конечно, гостиная, вернее полное ее осутствие. Поэтому, как вариант, гостевая должна быть максимально в доступе использования, если, конечно, там не поселится кто-то на постоянку. 

Читают эту тему: