Очень здорово, что вы осваиваете что-то новое, это очень интересный и трудный путь) учиться на дизайнера интерьера надо бы не на худграфе, а на архитектурном факультете.
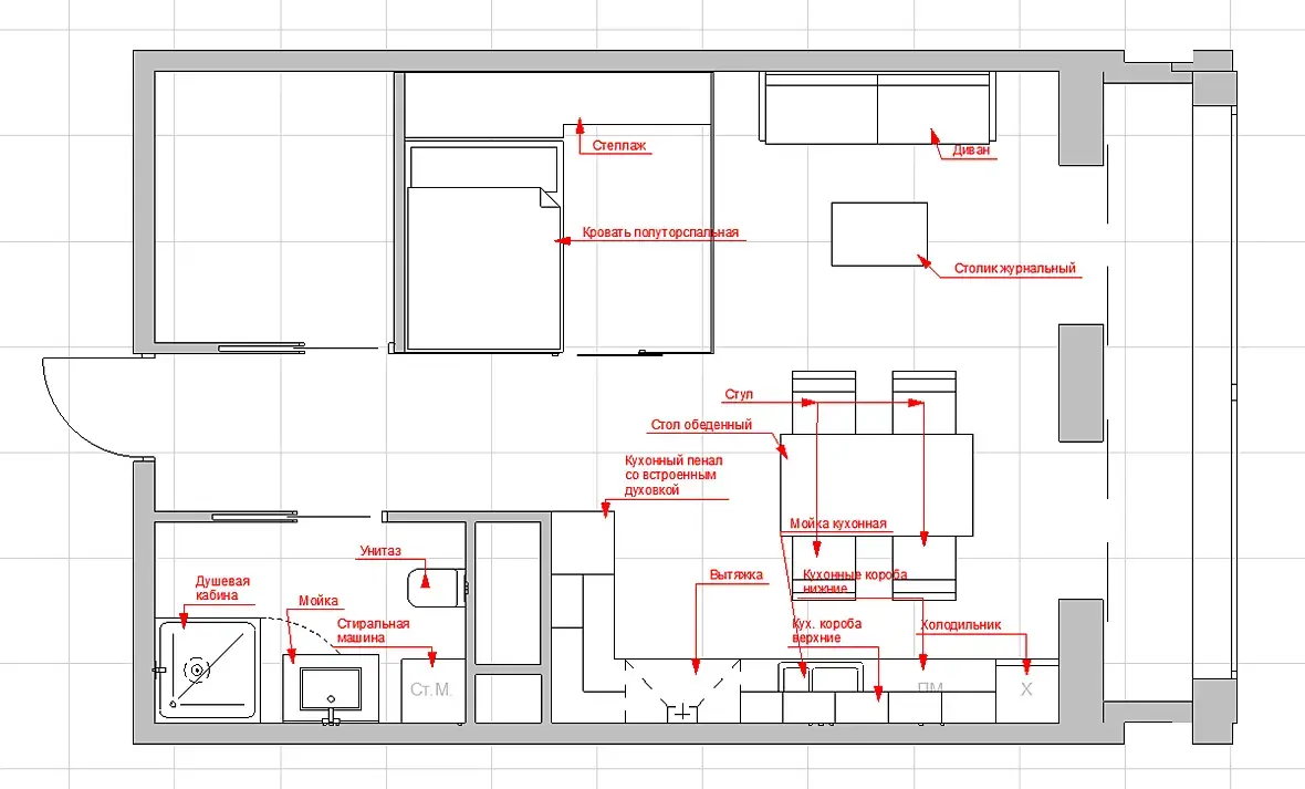
По работе - к сожалению, пока сложно сказать, что именно в работе не так, потому что не так очень многое: не закатывают всю жилую комнату в керамогранит, это дорого, неуютно, неинтересно; функция стеклянных перегородок не понятна, они не скрывают, только зачем-то перегораживают пространство; потолочное освещение - неинтересно, почитайте статьи в интернете про разные сценарии освещения; кровать на плане и кровать в визуализации различается по ширине, а диван не в масштабе. По эргономике оборудования и мебели тоже надо читать. Смотрите много, МНОГО интерьеров, есть большое количество прекрасных сайтов, где можно вдохновиться идеями и постепенно сформировать хороший вкус. Даже хайтечное минималистичное пространство можно сделать элегантным, по своему уютным и комфортным.
И, если вы действительно планируете стать дизайнером интерьера, не забывайте, что нарисовать картинки и планчик - это даже не полдела, самая мякотка начинается на этапе реализации интерьера. Очень много вопросов надо будет решать в связи с этим.
Очень здорово, что вы осваиваете что-то новое, это очень интересный и трудный путь) учиться на дизайнера интерьера надо бы не на худграфе, а на архитектурном факультете.
По работе - к сожалению, пока сложно сказать, что именно в работе не так, потому что не так очень многое: не закатывают всю жилую комнату в керамогранит, это дорого, неуютно, неинтересно; функция стеклянных перегородок не понятна, они не скрывают, только зачем-то перегораживают пространство; потолочное освещение - неинтересно, почитайте статьи в интернете про разные сценарии освещения; кровать на плане и кровать в визуализации различается по ширине, а диван не в масштабе. По эргономике оборудования и мебели тоже надо читать. Смотрите много, МНОГО интерьеров, есть большое количество прекрасных сайтов, где можно вдохновиться идеями и постепенно сформировать хороший вкус. Даже хайтечное минималистичное пространство можно сделать элегантным, по своему уютным и комфортным.
И, если вы действительно планируете стать дизайнером интерьера, не забывайте, что нарисовать картинки и планчик - это даже не полдела, самая мякотка начинается на этапе реализации интерьера. Очень много вопросов надо будет решать в связи с этим.
Принято! Спасибо большое за дельный совет)))
И снова здравствуйте! Выкладываю на ваш суд новую версию того-же проекта))) В ней постарался учесть все замечания, как получилось - судить вам! Буду рад любым замечаниям, но, пожалуйста, давайте без троллинга и всяких там шутеечек Пишем емко и по делу. Спасибо за понимание!
Тут дело даже не в дофе, а в том что объекты в фокусе пустые. Пустой стол, пустой диван, пустая столешница.
Вот сравните с этим https://3ddd.ru/galleries/gallery/gladiolusy . Первый ракурс чистый, без размытия. А второй с размытыми передним и задним планами, а красивый букет в фокусе.
Привет! Выкладываю на ваш суд ванную комнату того же проекта. Она у меня получилось довольно слабенькой, сам понимаю, поэтому прошу вас порекомендовать как можно ее улучшить А в остальном - шутите, прикалывайтесь, глумитесь)) Даю вам полную волю)) Можете оторваться как хотите, пусть это будет проверкой меня на стрессоустойчивость. НО! При этом не забывайте говорить по делу)))
Можете оторваться как хотите, пусть это будет проверкой меня на стрессоустойчивость. НО! При этом не забывайте говорить по делу)))
Вы либо свет сильно притушите, либо бросайте заниматься визуализацией это не ваше. И на будущее, белый это максимум 200 200 200, аналогично с черным 0 0 0 делать нельзя. ))
Можете оторваться как хотите, пусть это будет проверкой меня на стрессоустойчивость. НО! При этом не забывайте говорить по делу)))
Вы либо свет сильно притушите, либо бросайте заниматься визуализацией это не ваше. И на будущее, белый это максимум 200 200 200, аналогично с черным 0 0 0 делать нельзя. ))
ОК)) Исправлю) Я что-тот смутно такое помню, что нельзя на полный уровень выкручивать, но я думал это касается только короны, пунктика "level" в материалах, там я обычно ставлю 80%.
А визуализации я не брошу, ни за что! Это мое самое любимое дело! Программы я сам осваивал, мне один спец только объяснил интерфейс, а остальное я сам - что Макс, что Синька, что Вирей с Короной. Сам - на форумах, Ютуб, так никто не объяснял!
А на ошибках учатся))) Тут вы мне подсказали, там я сам прочитал, так глядишь и освою это искусство))
Итак, прошло пару дней)))
Уважаемые гуру, выкладываю на ваш суд 2-ю версию ванной. В ней я учел все рекомендации, а также изменил планировку и провел небольшую пост обработку. Картинки ниже.
В этом варианте я убрал стену, и снимал как-бы снаружи комнаты без стены. Так картинки получились более информативны.
Уважаемые гуру, у меня к вам просьба - пишите пожалуйста не только что плохо, но и как, по вашему, это можно исправить.
Помогите молодым Приму любую информацию. Спасибо за внимание !
А что моделек получше не было? Стиралка, душевой, унитаза, раковины, смесителей? Полотенца сушить будете в воздухе, или где то есть полотенцесушитель?? Ну тд, стаканчики, мыльницы....это так, к общему наполнению. Ну и в ванне что за стена? Краска, белила-цинковые, водостойкие? Как в 60-х в совдепе? Что нет плитки никакой? И что за ступенька? Чтоб вода из ванной лилась во всю квартиру?