WIP l Armenbl4

Автор
Сообщение
На сайте c 19.04.2018
Сообщений: 92
Санкт Петербург

Всем доброго времени суток! Спасибо что заглянули)

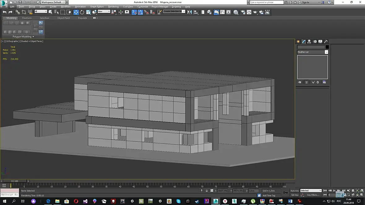
Итак, задача поставленная самому себе в подготовке полного пакета документации (в моем случае это раздел АИ, к расчетам строительной части не лезу, так как не умею...) и набор интерьерных и экстерьерных рендеров. Начну с того что у меня было изначально, это набросок архитектурного проекта и несколько рендеров на фоне леса.

Это изначальное... первое же обращение к знакомым архитекторам показало кучу недочетов, и прищлось попросить человека с переделом архитектуры. На данный момент, так как работа ведется за печеньку исправления не закончены, есть несколько моментов: количество ступеней на второй этаж изменено, так как высота не соответствовала стандартам, из-за этого в центре первого этажа возник некий подиум, и еще некоторые вещи, которые без чертежей на руках не дают мне заняться интерьером... пришлось делать пока наружку

Вот так получился черновой вариант коробки

Так как я по возможности прохожу все вебинары по интерьеру и экстерьеру, которые бесплатные и могу посмотреть в записи) интернет не тянет прямой эфир к сожалению... по ходу использую какие-то части из своего проекта применительно к вебинарам.

это то на чем я пока остановился, хотя изначально выглядело по другому)

как видите, проблема с бликами и дисплейсментом

На сайте c 08.10.2009
Сообщений: 84
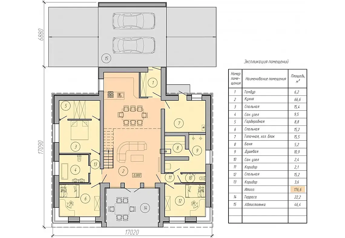
Двери в спальню 5 и 8 - никогда не устанавливайте двери вплотную к стене. Как вы заведете плинтус и наличник?
На сайте c 19.04.2018
Сообщений: 92
Санкт Петербург

Цитата fly-69:
Двери в спальню 5 и 8 - никогда не устанавливайте двери вплотную к стене. Как вы заведете плинтус и наличник?

да, верно, но на данный момент это проект спертый из интернета и за его качество я ответственности не несу) я его показал, чтобы отобразить с чем мне пришлось работать)

на большом расстоянии не сильно заметно вроде, но я решил камни убрать

вот скрин самого материала, дисплейсмент делал через цветокоррекцию и она почти справилась... но нужно бы замазать блики в фш, но я им не владею и оставил на потом

На сайте c 08.10.2009
Сообщений: 84
При настроенном освещении и на переднем плане будет видно , что это текстура(( . На сайте есть очень много качественных моделей гальки.
На сайте c 19.04.2018
Сообщений: 92
Санкт Петербург
Цитата fly-69:
При настроенном освещении и на переднем плане будет видно , что это текстура(( . На сайте есть очень много качественных моделей гальки.

да, видел... но хотелось бы сделать самому) если кто может подсказать как, я только рад)

На сайте c 23.05.2011
Сообщений: 4827
Цитата fly-69:
При настроенном освещении и на переднем плане будет видно , что это текстура

этой текстурой нельзя дисплейсить лажа будет

либо искать на торентах что типа арровэй  и тп, либо пытаться тащить из диффуза нормалку из нормалки высоту в сабстансе, или крейзи бампе  и тп, лучше в сабстансе, ао и вот это вот все в 16 бит

На сайте c 19.04.2018
Сообщений: 92
Санкт Петербург

помимо всего прочего  я хотел бы сделать все своими руками... поэтому вопросов будет много...

Цитата larrs:
Цитата fly-69:
При настроенном освещении и на переднем плане будет видно , что это текстура

этой текстурой нельзя дисплейсить лажа будет

собственно лажа и получилась... блики мне камни изуродовали

На сайте c 07.07.2008
Сообщений: 893
Montenegro
Цитата fly-69:
Двери в спальню 5 и 8 - никогда не устанавливайте двери вплотную к стене. Как вы заведете плинтус и наличник?

Так делают двери с коробами invisible и встроенными плинтусами. 

На сайте c 23.05.2011
Сообщений: 4827
Цитата Armenbl4:
блики мне камни изуродовали

блики надо глосси давить, но начинать  с нормальных карт

На сайте c 19.04.2018
Сообщений: 92
Санкт Петербург

Цитата larrs:
Цитата Armenbl4:
блики мне камни изуродовали

блики надо глосси давить, но начинать  с нормальных карт

вариант с глосси не пробовал... собственно это была первая работа со сложными матами собранными своими руками)

Цитата Lamfadel:
Цитата fly-69:
Двери в спальню 5 и 8 - никогда не устанавливайте двери вплотную к стене. Как вы заведете плинтус и наличник?

Так делают двери с коробами invisible и встроенными плинтусами. 

а можно ссылку на инфу? не сталкивался с подобными

На сайте c 23.05.2011
Сообщений: 4827
Цитата Armenbl4:
вариант с глосси не пробовал... собственно это была первая работа со сложными матами собранными своими руками)

есть короновская библиотека как рыба лучше не придумаешь

На сайте c 19.04.2018
Сообщений: 92
Санкт Петербург
Цитата larrs:
Цитата Armenbl4:
вариант с глосси не пробовал... собственно это была первая работа со сложными матами собранными своими руками)

есть короновская библиотека как рыба лучше не придумаешь

может у меня не полный вариант? у себя гальки от короны не нашел...

На сайте c 23.05.2011
Сообщений: 4827
Цитата Armenbl4:
может у меня не полный вариант? у себя гальки от короны не нашел...

галька как бы то же камень, если это не Найт конечно))))

На сайте c 19.04.2018
Сообщений: 92
Санкт Петербург
Цитата larrs:
Цитата Armenbl4:
может у меня не полный вариант? у себя гальки от короны не нашел...

галька как бы то же камень, если это не Найт конечно))))

стоп, у меня нет отдельных камней, на которые нужно накидывать маты, у меня плейн под дисплейсментом... а среди 12 штук короновских текстур камня что у меня есть ничего похожего... 

На сайте c 23.05.2011
Сообщений: 4827
настройка материало там глосси и все такое будет эдентичной набор карт тоже
На сайте c 19.04.2018
Сообщений: 92
Санкт Петербург
или как вариант я чего-то не понял) сорри, я самоучка, изучавший 3д методом тыка, так что с терминами могу не дружить)
На сайте c 26.05.2015
Сообщений: 95
Россия, Магнитогорск
Цитата Armenbl4:
Цитата fly-69:
При настроенном освещении и на переднем плане будет видно , что это текстура(( . На сайте есть очень много качественных моделей гальки.

да, видел... но хотелось бы сделать самому) если кто может подсказать как, я только рад)

Текстуры гальки можно с той же самой фотографии срезать, и в удобном для вас редакторе из фрагментов собрать под развёртку. Нормали и карту отражений можно сделать в Фотошопе или в crazybump, результат близкий. После мультискаттером множите гальку (модель сделать будет несложно), и результат будет радовать глаз куда больше, чем текстура с дисплейсом.
На сайте c 19.04.2018
Сообщений: 92
Санкт Петербург
Цитата larrs:
настройка материало там глосси и все такое будет эдентичной набор карт тоже

ааа, ну да, скопировать параметры... не подумал, сейчас попробую)

На сайте c 23.05.2011
Сообщений: 4827

вот эта рыба пойдет только карты пихай свои 

caa58fb818ee9166006f3c8ef7649c9a.jpeg

На сайте c 19.04.2018
Сообщений: 92
Санкт Петербург

Цитата Salem Black:
Текстуры гальки можно с той же самой фотографии срезать, и в удобном для вас редакторе из фрагментов собрать под развёртку. Нормали и карту отражений можно сделать в Фотошопе или в crazybump, результат близкий. После мультискаттером множите гальку (модель сделать будет несложно), и результат будет радовать глаз куда больше, чем текстура с дисплейсом.

вот честно скажу, со скаттером ни разу не связывался еще... установил даже, зашел и заблудился) поэтому такой вариант был... а можно рекомендацию на видео или литературу чтобы разобраться смог?

Цитата larrs:

вот эта рыба пойдет только карты пихай свои 

такая есть) сейчас попробую. А почему рыба? на будущее, чтоб не шокировало)

Читают эту тему: