W.I.P. 2600

Автор
Сообщение
На сайте c 17.06.2012
Сообщений: 142
Благовещенск
Всем привет!
На сайте c 17.06.2012
Сообщений: 142
Благовещенск

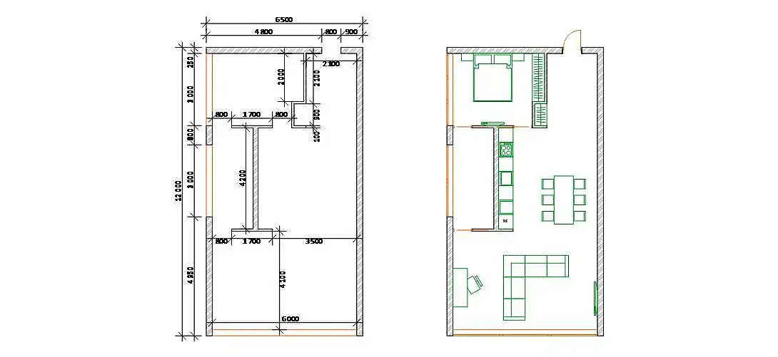
В работе наступило затишье, поэтому я решил сделать пару работ для галереи. Работ универсальных, что бы там было всё, и интерьер и экстерьер и окружение.

Поковыряв пайнтерест нашел современный дом с чертежом планировки. Размеров не было, поэтому адаптировал в архикаде по своему вкусу и "на глаз"

Дальше собрал болванку дома

Высота стен, окон, и ската крыши - "на глаз". Надеюсь не промахнулся с пропорциями.

Внутри пока модели из каталогов, так как я решил сконцентрироваться в первую очередь на экстерьере.

Модель простая, стены из сплайна, окна из бокса, облицовка - флор генератор, двери из старых проектов, фундамент - бокс.

Поковыряв гугл, решил что окружением послужит скандинавская "степь" с пожухлой травой и плотным хвойным лесом на горизонте. 

Первым делом сделал плейн 100*100 метров. Наскаттерил травы. Скаттер стандартный короновский, маску для него рисовал в viewport Canvas. Подсмотрел у Александра Пазуренко в мейкофе "Возвращения на Татуин", за что ему спасибо.

Дальше замоделил плейн, который будет играть роль подложки для леса. Наскаттерил туда ёлок.

Подсмотрел в интернетах дедовский способ моделирования процедурных камней. Сделал пока два, для переднего плана. Позже запеку текстурки с них, сейчас лениво)

Дальше поставил камеру.

Скрипт "Фибоначчи" подсмотрел у того же Пазуренко, за что ему ещё раз спасибо.

Первые тесты:

На сайте c 17.12.2015
Сообщений: 1089




Дата выдачи:
06.08.2024 17:58:08


Пожизненный бан
Продолжайте)
На сайте c 17.06.2012
Сообщений: 142
Благовещенск

"Туман войны" это "corona volumetric mtl". Подсмотрел на вебинаре у Артёма Куприяненко, за что и ему тоже спасибо)

На этом пока всё, Сегодня буду моделить мелочи для окружения. Хочу сделать ограду для поля, возможно нарисовать грунтовую дорогу для переднего плана. Размышлял над трактором в поле, но потом решил что не стоит отвлекать им внимание. Хочется минимализма, лаконичности в деталях.

Если у кого-то есть советы/комментарии - милости прошу. Всем заранее спасибо)

На сайте c 17.12.2015
Сообщений: 1089




Дата выдачи:
06.08.2024 17:58:08


Пожизненный бан
Я бы добавил еще других семплов травы, сейчас она как-то слишком однородно смотрится.
На сайте c 17.06.2012
Сообщений: 142
Благовещенск
Цитата dftd:
Я бы добавил еще других семплов травы, сейчас она как-то слишком однородно смотрится.

Я тоже об этом думал, У меня была пара тестов с тимофеевкой, но пока не нашёл для себя того, что бы понравилось. Я думаю что сначала закончу с мелочами для поля, а позже посвещу день на тесты именно травы и растительности. 

На сайте c 09.05.2016
Сообщений: 1203
Ukraine. Kiev.
Цитата outgribe:
труба радиатора мелкописюлечная, не удержится он на ней )

Радиаторы не подвешиваются на трубах отопления, для этого есть специальные кронштейны. Если не верите- подойдите к окну, батареи как правило устанавливают там, отодвиньте штору и самолично в этом убедитесь. Поздравляю- Вы, сегодня, на 40 вом году своей жизни, совершили великое открытие, ведь столько лет пребывали в глупом неведении. 

PS/ 

Диаметр трубы отопления, в месте подключения батареи от 16 мм. ( Открытие номер два. Явно удачный день )

На сайте c 17.06.2012
Сообщений: 142
Благовещенск
Цитата Arch-magic:
Цитата outgribe:
труба радиатора мелкописюлечная, не удержится он на ней )

Радиаторы не подвешиваются на трубах отопления, для этого есть специальные кронштейны. Если не верите- подойдите к окну, батареи как правило устанавливают там, отодвиньте штору и самолично в этом убедитесь. Поздравляю- Вы, сегодня совершили великое открытие, ведь столько лет пребывали в глупом неведении. 

Это стаааарая работа и её комментировать поздно) Но всё равно спасибо)

На сайте c 09.05.2016
Сообщений: 1203
Ukraine. Kiev.
Цитата 2600:
В работе наступило затишье, поэтому я решил сделать пару работ для галереи. Работ универсальных, что бы там было всё, и интерьер и экстерьер и окружение. Поковыряв пайнтерест нашел современный дом с чертежом планировки. Размеров не было, поэтому адаптировал по своему вкусу и "на глаз"

Готовые болванки домов ( проекты, как правило, реализованы- дома реально построены ), для тренировок под виз, можно раздобыть здесь https://3ddd.ru/forum/thread/show/vzaimovygodnye_predlozheniia 

На сайте c 17.06.2012
Сообщений: 142
Благовещенск
Цитата Arch-magic:
Цитата 2600:
В работе наступило затишье, поэтому я решил сделать пару работ для галереи. Работ универсальных, что бы там было всё, и интерьер и экстерьер и окружение. Поковыряв пайнтерест нашел современный дом с чертежом планировки. Размеров не было, поэтому адаптировал по своему вкусу и "на глаз"

Готовые болванки домов ( проекты, как правило, реализованы- дома реально построены ), для тренировок под виз, можно раздобыть здесь https://3ddd.ru/forum/thread/show/vzaimovygodnye_predlozheniia  

Спасибо, полистаю. Но в данном случае я искал дом, который мне нравится. То, что детали в проекте я подгонял "на глаз" - конечно не очень правильно, зато я точно знаю что в модели, собранной своими руками не будет неприятных сюрпризов)

На сайте c 09.05.2016
Сообщений: 1203
Ukraine. Kiev.
Цитата 2600:
Спасибо, полистаю. Но в данном случае я искал дом, который мне нравится. То, что детали в проекте я подгонял "на глаз" - конечно не очень правильно, зато я точно знаю что в модели, собранной своими руками не будет неприятных сюрпризов)

То я так, немного пиарю тему, ну чтоб народ, пошевелить. Для тех кто не знает.

На сайте c 10.12.2009
Сообщений: 1661
Хорошо получается. На горизонт тумана немного и камни отодвинуть подальше от камеры и размыть их фокус, а то они претендуют на главную роль.
На сайте c 17.06.2012
Сообщений: 142
Благовещенск
Цитата DaNPride:
Хорошо получается. На горизонт тумана немного и камни отодвинуть подальше от камеры и размыть их фокус, а то они претендуют на главную роль.

Насчёт сдвинуть их тоже думал. Но размывать - не уверен. Мне кажется в таком пространстве ДОФ не очень уместен. Хотя поэксперементировать стоит, спасибо!

На сайте c 17.12.2015
Сообщений: 1089




Дата выдачи:
06.08.2024 17:58:08


Пожизненный бан
Цитата 2600:
Цитата DaNPride:
Хорошо получается. На горизонт тумана немного и камни отодвинуть подальше от камеры и размыть их фокус, а то они претендуют на главную роль.

Насчёт сдвинуть их тоже думал. Но размывать - не уверен. Мне кажется в таком пространстве ДОФ не очень уместен. Хотя поэксперементировать стоит, спасибо!

Мне кажется по минимуму "замылить" лес будет хорошо.

На сайте c 17.06.2012
Сообщений: 142
Благовещенск

Немного доработал окружение, разбавил траву, допилил камни. Немножко переделал шейдер травы. И поменял компоновку кадра. В общем решил остановиться вот на этом.

Накидайте пожалуйста комментариев, кому не лень. Может что-то поправить, убрать/добавить.

На сайте c 10.12.2009
Сообщений: 1661
Композиция странная. Пустота...
На сайте c 17.06.2012
Сообщений: 142
Благовещенск
Цитата DaNPride:
Композиция странная. Пустота...

Ну я и хотел лаконичности и много пустого пространства. Или это выглядит совсем плохо?

На сайте c 09.05.2016
Сообщений: 1203
Ukraine. Kiev.
Дом мультяшный.
На сайте c 10.12.2009
Сообщений: 1661
Цитата 2600:
Ну я и хотел лаконичности и много пустого пространства. Или это выглядит совсем плохо?

Композиция раньше была лучше. Если хотите показать пустое пространство покажите просто белый лист)))

Домик не вписался в окружение, думаю в этом виноват не домик, а лес, который смотрится как плоская стена.

На сайте c 17.06.2012
Сообщений: 142
Благовещенск

Еще один вариант освещения. Над композицией ещё поработаю. Наверное, как советовали, вернусь к вертикальной компоновке кадра. И потихоньку начну интерьер собирать. 

Читают эту тему: