В работе наступило затишье, поэтому я решил сделать пару работ для галереи. Работ универсальных, что бы там было всё, и интерьер и экстерьер и окружение.
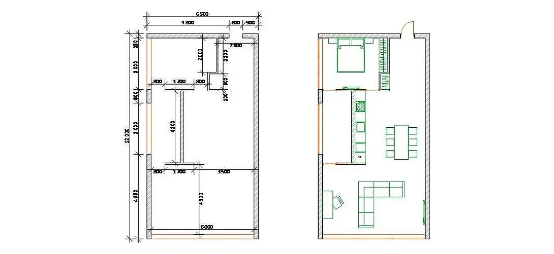
Поковыряв пайнтерест нашел современный дом с чертежом планировки. Размеров не было, поэтому адаптировал в архикаде по своему вкусу и "на глаз"
Дальше собрал болванку дома
Высота стен, окон, и ската крыши - "на глаз". Надеюсь не промахнулся с пропорциями.
Внутри пока модели из каталогов, так как я решил сконцентрироваться в первую очередь на экстерьере.
Модель простая, стены из сплайна, окна из бокса, облицовка - флор генератор, двери из старых проектов, фундамент - бокс.
Поковыряв гугл, решил что окружением послужит скандинавская "степь" с пожухлой травой и плотным хвойным лесом на горизонте.
Первым делом сделал плейн 100*100 метров. Наскаттерил травы. Скаттер стандартный короновский, маску для него рисовал в viewport Canvas. Подсмотрел у Александра Пазуренко в мейкофе "Возвращения на Татуин", за что ему спасибо.
Дальше замоделил плейн, который будет играть роль подложки для леса. Наскаттерил туда ёлок.
Подсмотрел в интернетах дедовский способ моделирования процедурных камней. Сделал пока два, для переднего плана. Позже запеку текстурки с них, сейчас лениво)
Дальше поставил камеру.
Скрипт "Фибоначчи" подсмотрел у того же Пазуренко, за что ему ещё раз спасибо.
"Туман войны" это "corona volumetric mtl". Подсмотрел на вебинаре у Артёма Куприяненко, за что и ему тоже спасибо)
На этом пока всё, Сегодня буду моделить мелочи для окружения. Хочу сделать ограду для поля, возможно нарисовать грунтовую дорогу для переднего плана. Размышлял над трактором в поле, но потом решил что не стоит отвлекать им внимание. Хочется минимализма, лаконичности в деталях.
Если у кого-то есть советы/комментарии - милости прошу. Всем заранее спасибо)
Я бы добавил еще других семплов травы, сейчас она как-то слишком однородно смотрится.
Я тоже об этом думал, У меня была пара тестов с тимофеевкой, но пока не нашёл для себя того, что бы понравилось. Я думаю что сначала закончу с мелочами для поля, а позже посвещу день на тесты именно травы и растительности.
На сайте c 09.05.2016
Сообщений: 1203
Ukraine. Kiev.
Цитата outgribe:
труба радиатора мелкописюлечная, не удержится он на ней )
Радиаторы не подвешиваются на трубах отопления, для этого есть специальные кронштейны. Если не верите- подойдите к окну, батареи как правило устанавливают там, отодвиньте штору и самолично в этом убедитесь. Поздравляю- Вы, сегодня, на 40 вом году своей жизни, совершили великое открытие, ведь столько лет пребывали в глупом неведении.
PS/
Диаметр трубы отопления, в месте подключения батареи от 16 мм. ( Открытие номер два. Явно удачный день )
труба радиатора мелкописюлечная, не удержится он на ней )
Радиаторы не подвешиваются на трубах отопления, для этого есть специальные кронштейны. Если не верите- подойдите к окну, батареи как правило устанавливают там, отодвиньте штору и самолично в этом убедитесь. Поздравляю- Вы, сегодня совершили великое открытие, ведь столько лет пребывали в глупом неведении.
Это стаааарая работа и её комментировать поздно) Но всё равно спасибо)
На сайте c 09.05.2016
Сообщений: 1203
Ukraine. Kiev.
Цитата 2600:
В работе наступило затишье, поэтому я решил сделать пару работ для галереи. Работ универсальных, что бы там было всё, и интерьер и экстерьер и окружение. Поковыряв пайнтерест нашел современный дом с чертежом планировки. Размеров не было, поэтому адаптировал по своему вкусу и "на глаз"
В работе наступило затишье, поэтому я решил сделать пару работ для галереи. Работ универсальных, что бы там было всё, и интерьер и экстерьер и окружение. Поковыряв пайнтерест нашел современный дом с чертежом планировки. Размеров не было, поэтому адаптировал по своему вкусу и "на глаз"
Спасибо, полистаю. Но в данном случае я искал дом, который мне нравится. То, что детали в проекте я подгонял "на глаз" - конечно не очень правильно, зато я точно знаю что в модели, собранной своими руками не будет неприятных сюрпризов)
На сайте c 09.05.2016
Сообщений: 1203
Ukraine. Kiev.
Цитата 2600:
Спасибо, полистаю. Но в данном случае я искал дом, который мне нравится. То, что детали в проекте я подгонял "на глаз" - конечно не очень правильно, зато я точно знаю что в модели, собранной своими руками не будет неприятных сюрпризов)
То я так, немного пиарю тему, ну чтоб народ, пошевелить. Для тех кто не знает.
Хорошо получается. На горизонт тумана немного и камни отодвинуть подальше от камеры и размыть их фокус, а то они претендуют на главную роль.
Насчёт сдвинуть их тоже думал. Но размывать - не уверен. Мне кажется в таком пространстве ДОФ не очень уместен. Хотя поэксперементировать стоит, спасибо!
Хорошо получается. На горизонт тумана немного и камни отодвинуть подальше от камеры и размыть их фокус, а то они претендуют на главную роль.
Насчёт сдвинуть их тоже думал. Но размывать - не уверен. Мне кажется в таком пространстве ДОФ не очень уместен. Хотя поэксперементировать стоит, спасибо!
Мне кажется по минимуму "замылить" лес будет хорошо.
Немного доработал окружение, разбавил траву, допилил камни. Немножко переделал шейдер травы. И поменял компоновку кадра. В общем решил остановиться вот на этом.
Накидайте пожалуйста комментариев, кому не лень. Может что-то поправить, убрать/добавить.
Еще один вариант освещения. Над композицией ещё поработаю. Наверное, как советовали, вернусь к вертикальной компоновке кадра. И потихоньку начну интерьер собирать.