В PDF удобнее всего
А если вы про то, что именно указать на листах, то тут зависит от подробности проработки дизайна.

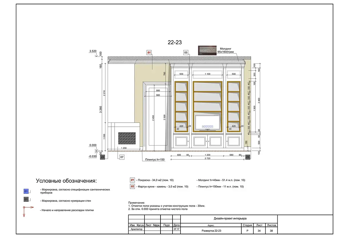
Делают планы полов, потолков, мебели, развертки стен, спецификации. У некоторых эти листы очень хорошо проработаны, а некоторые оформляют их с минимумом информации.

По объему проекты могут достигать до 100 листов, а могут и 20. Сначала чертежи, потом визы (чаще всего в такой последовательности)
Если интересно, можете посмотреть больше листов у меня в теме https://3ddd.ru/forum/thread/show/chertezhi_dlia_intererov_v_archicad
Или на сайте (он коммерчески направленный, но там много листов в качестве примера)
http://danstar-pro.ru/dizajn-interera-chertezhi/