Подсчет площадей стен с помощью зон

Автор
Сообщение
На сайте c 26.07.2008
Сообщений: 4163
Москва
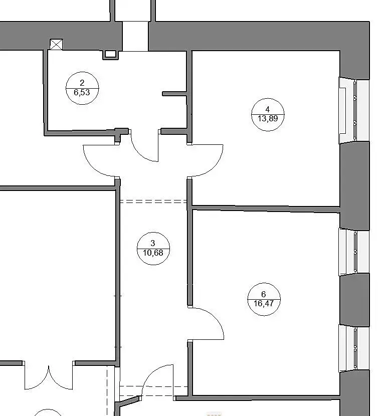
Проблема выявилась такая: зона не считает площади стен (и кол-во окон, дверей и т.д.) если она нарисована вручную, а не автоматом сделана (щелчком). Но у меня по другому нельзя все стены адово кривые, строил их многоугольными стенами, они хоть и совпадают, все без дырок, но автоматическая зона пролетает сквозь них, сразу на полквартиры. Что делать? Трапециевидными стенами все делать?

На сайте c 26.09.2006
Сообщений: 5355
Белокаменная
Выложи файл, так трудно сказать.
На сайте c 26.07.2008
Сообщений: 4163
Москва
Цитата sagava:
Выложи файл, так трудно сказать.

в лс кинул

На сайте c 07.04.2017
Сообщений: 56


Удачи на других сайтах

Дата выдачи:
06.08.2024 17:58:08


Пожизненный бан
старый кирпичный дом, в котором несколько склееных квартир в центре? )
На сайте c 26.07.2008
Сообщений: 4163
Москва
sette777s вполне возможно, коммуналка. Обмеры, предполагаю, были непростыми
На сайте c 26.09.2006
Сообщений: 5355
Белокаменная
Uraken, не точное построение твоих зон. Они не соприкасаются со стенами. Зазоры очень мелкие, но они есть. Поправь зоны и все пересчитывается.
На сайте c 29.05.2011
Сообщений: 1752
по ссылке с Яндекса
Что делать? Отстроить прямые, как если на них штукатурка уже наложена. Рабочку тоже с такой кривизной делать будешь? О_о
На сайте c 26.07.2008
Сообщений: 4163
Москва

In-design похоже, выравнивать их не собираются, только штукатурить, так что да, так криво и будет

sagava попробую, но уже выравнивал-выравнивал...

Короче все заново, трапециевидными стенами (все посчиталось хорошо)

Читают эту тему: