конструкторы пожалуйста отзовитесь

Автор
Сообщение
На сайте c 02.05.2014
Сообщений: 376

Добрый день всем 

Дайте пожалуйста совет , 

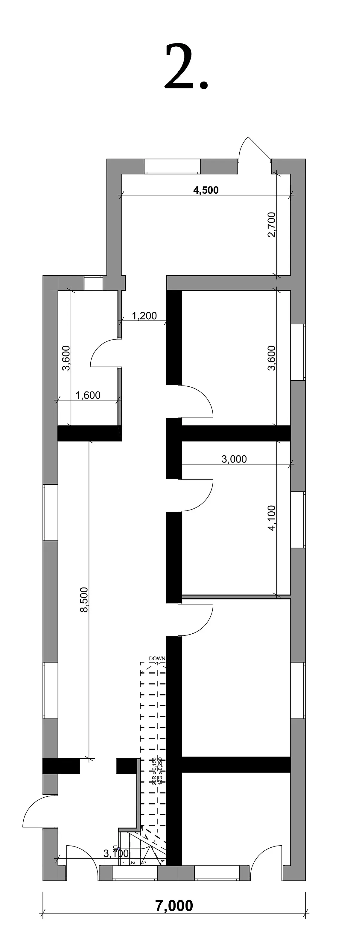
 Здания почти 2 этажная( 1 этаж и маснард) на картинке только планировка первого этажа 

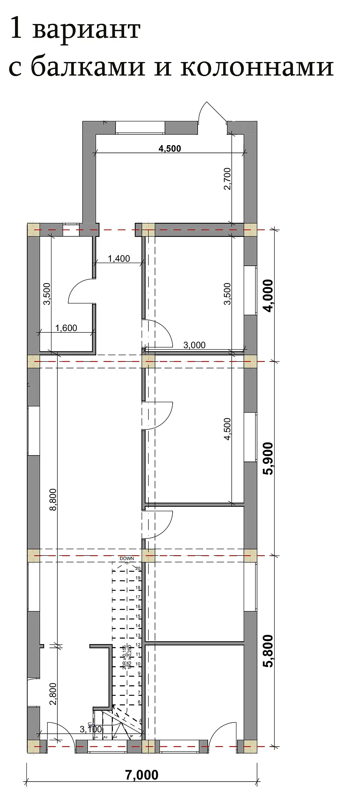
ВОПРОС ! кроме этой конструкции(с колоннами и балками) ещё какие варианты можно делать? особенно если это не высокоэтажное здание , например можно ли с двумя несущими стенами ?

Можно ли как-то так? (jpg2) если иметь ввиду что чёрными обозначены несущие, если нет то как ещё делать с несущей конструкцией ? и чем плох первый вариант с колоннами?

Спасибо

На сайте c 24.11.2009
Сообщений: 4872
Москва
Несущие трогать нельзя. Если балки с колоннами, то делаете, как вам надо, не влезая в ни в балки ни в колонны.  Если несущие стены, то делаете проект у лицензированных конструкторов на проемы в нужных местах и всё.
На сайте c 02.05.2014
Сообщений: 376

a.timofeev

Вы неправильно  поняли вопрос

здание пока что не построена ! должны сделать как на первой (с балками) хочу просто для себя узнать кроме такой конструкции, ещё как можно было ? например если сделать как второй вариант с несущими, то можно ли как на второй картинке  ???  как правильнее будет с колоннами и балками или как то подругому  ???

На сайте c 25.02.2009
Сообщений: 2751
Липецк

Затык в лестнице (если там перекрытие не монолитное кашн).

Так-то до 8 метров можно стропилку делать висячей на затяжках. Правда о мансарде придётся забыть, т.к. нужен пояс по всему периметру, чтоб от раскорячивания стропил работал, а окна этот пояс будут рассекать.

Схема рисковая (нет запаса на рукожопство), но вполне можно обойтись без промежуточных несущих стен.

На картинках.

1й вариант экономичней и правильней.

2й деревенский (я такие делаю, т.к. каркасами не занимаюсь). Тоже имеет место быть.

На сайте c 17.03.2020
Сообщений: 3715
spb

Можно убрать средний ряд колонн, принять продольный шаг метра 4, и пролет 7х4 метра перекрывается монолитным безбалочным перекрытием толщиной около 200-220 мм. но конструктор должен быть грамотный

вообще лучше вариант с колоннами, чище и проще + пролеты реально  перекрываемые монолитом без выступающих балок

у вас похоже еще и сейсмика в полный рост?

На сайте c 08.08.2008
Сообщений: 258
Москва

Монолитное перекрытие можно и без опор, всего 6 метров в свету. Толщина - 1/30 пролета.

Можно плиты перекрытия ПК, но тогда придется бетонировать участок при лестнице, и лучше оставить колонну в этом месте, как на первом рисунке. Хотя колонна и в случае монолитного перекрытия будет кстати.

Можно двутаврами перекрыть, по ним настил. Но про стены ничего не известно, в 90% случаев придется жб под них отливать. Можно даже клееные балки в теории (только зачем?).

В общем, не хватает инфы по материалу стен и разреза по дому.

На сайте c 24.11.2009
Сообщений: 4872
Москва
Цитата Nebrovt:

a.timofeev

Вы неправильно  поняли вопрос

здание пока что не построена ! должны сделать как на первой (с балками) хочу просто для себя узнать кроме такой конструкции, ещё как можно было ? например если сделать как второй вариант с несущими, то можно ли как на второй картинке  ???  как правильнее будет с колоннами и балками или как то подругому  ???

Ааааа =))  Я с т.з. существующих конструкций писал )

Читают эту тему: