Дизайн кухни (пм, духовка и холодильник)

Автор
Сообщение
На сайте c 13.06.2015
Сообщений: 918
Ukraine, Kyiv

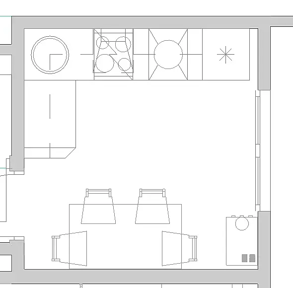
Делаю кухню, и получается такая история. Но мне не нравятся фасады. Вопрос такой: можно ли ставить рядом духовку, пм и холодильник? Сейчас между ними 15 см. Плюс мало места под умывальником, возле духовки.

На сайте c 08.10.2009
Сообщений: 84
Если техника встраиваемая (духовка и пм) - то можно. Плиту ставьте подальше от мойки (подвиньте к холодильнику - минимум 300 мм от холодильника.), а пм на противоположную стену. Неудобно когда плита возле мойки рядом.
На сайте c 28.02.2017
Сообщений: 2977
Omsk

Поддержу с плитой подальше от мойки. Если индукция, то 30-40см от холодильника вполне нормально. ПМ вообще можно на левое крыло

Мойка в углу тоже такое себе удовольствие, но если есть ПМ, то терпимо наверно

На сайте c 13.06.2015
Сообщений: 918
Ukraine, Kyiv

Сдвинул пм на левое крыло, а плиту на 30 см от холодильника. Так уже получше будет.

Плиту пока еще не выбрали, но у меня стоит 30 см от холодильника. Конечно больше лучше, но размеры не совсем позволяют.

Спасибо!)

На сайте c 28.02.2017
Сообщений: 2977
Omsk
Вы для себя или заказчика? У меня в принципе сейчас аналогичная планировка кухни, только мойка тоже на левом крыле, мне удобно что ПМ слева. В готовке очень мешает что столешки соединены планкой
На сайте c 13.06.2015
Сообщений: 918
Ukraine, Kyiv
Dogeva для знакомого. У них сейчас такая же планировка только без посудомойки. Решили планировку мойки такую оставить, так как уже привыкли к ней.
На сайте c 07.11.2014
Сообщений: 550

Привет!

А я бы не делала угловую кухню на такой площади. Не стоит того, мало дополнительной рабочей поверхности и дурацкий угловой шкаф, где всё оставленное по закону физики канет в небытие. Плюс раковина в углу - это такое себе. Раз делаете круглую, кстати, то пусть она будет хотя бы достаточно глубокой. А лучше - нормальной, прямоугольной.

Я бы поменяла местами плиту и мойку - сейчас несоблюдён рабочий треугольник, и плиту всё время придётся обходить к мойке, достав что-то из холодильника.

Варочную поверхность можно сделать на 2 конфорки, особенно если квартира на краткосрочную аренду. Тогда будет больше свободной площади столешницы.

И что за агрегат в правом нижнем углу? Если СВЧ, то можно интегрировать в вытяжку.

На сайте c 13.06.2015
Сообщений: 918
Ukraine, Kyiv

zyuma Привет) Этот агрегат - котел газовый. Тоже малину всю портит. Это старый дом, и в каждой квартире своё отопление.

Если поменять плиту и мойку местами, то до холодильника 15 см будет не очень.

В принципе можно и 2 комфорки, но не очень удобно.

Пока попробую сделать угловой вариант, а там посмотрим.

На сайте c 07.11.2014
Сообщений: 550
Цитата freys2011:
Если поменять плиту и мойку местами, то до холодильника 15 см будет не очень.

А как так получается? Местами только плита и мойка меняются, ПМ остаётся на месте в моем представлении.

На сайте c 13.06.2015
Сообщений: 918
Ukraine, Kyiv
Цитата zyuma:
Цитата freys2011:
Если поменять плиту и мойку местами, то до холодильника 15 см будет не очень.

А как так получается? Местами только плита и мойка меняются, ПМ остаётся на месте в моем представлении.

Упс, тупанулsmiley-crazy.gif

На сайте c 27.08.2013
Сообщений: 8
Караганда
Не думали о таком варианте - перенести мойку из угла на боковую секцию? Судя по вашему плану глубина шкафа позволяет. Или перенести мойку на место плиты, а плиту на боковую секцию? И кстати из личного жизненного опыта - "рабочим треугольником" при такой маленькой площади вполне можно пренебречь
На сайте c 13.06.2015
Сообщений: 918
Ukraine, Kyiv

SandraD там 45 см будет слева поверхность.

У меня еще такой вопрос, можно ли сделать натяжной потолок с подсветкой у шторы? Как с гипсокартоном, только я использую натяжные потолки. Вот комната для примера, с планом потолка. По сторонам должна быть подсветка.

На сайте c 27.08.2013
Сообщений: 8
Караганда
Подсветка у шторы или по сторонам? - впрочем не важно, заспойлерю - можно, но проконсультируйтесь дополнительно у потолочников. Кроме того, если будете использовать ленту - её нужно крепить максимально ровно по прямой, а то будет смотреться очень не очень при включенной подсветке. Ну и максимально выровненные по плоскости стены приветствуются. Любой косяк будет видно при включении подсветки (кроме зоны со шторами).
На сайте c 13.06.2015
Сообщений: 918
Ukraine, Kyiv

SandraD Стены планируют выравнивать. А подсветка и там где карниз, и по бокам от карниза. Вроде как нашел что можно.

Всем спасибо за ответы!)

Читают эту тему: