Dzharik, вы бы хоть показали чего там за лепнина. Вариантов несколько существует, если ручная работа не смущает, то самый чистый результат, на мой взгляд, это подготовить чертеж в 3ds max, ручками. Потом уже хоть куда его кидайте. Выглядеть как то так будет:

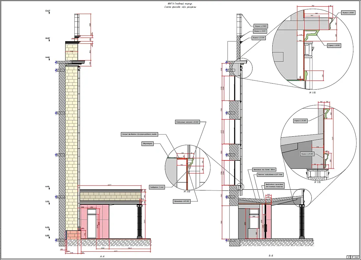
Это увеличение с этого листа:


Более автоматический вариант вытащить вектора, использовать скетчап, но он просто сетку сделает, причем местами грязную. Плюс побьет каждый отрезок на отдельные сегменты, скажем если у вас две прямые пересекаются, то на выходе будет 3 отдельных отрезка. Зато автоматически, только ждать возможно долго придется.