Archicad сливание стен

Автор
Сообщение
На сайте c 18.03.2008
Сообщений: 267
народ, кто поможет...виждела мелдьком существование такой кнопочки когда рядом расположенные, но не объединенные стены можно слить в одну.....помогите найти??
На сайте c 09.11.2008
Сообщений: 83
стены из сплайнов, или wall?
На сайте c 18.03.2008
Сообщений: 267
архикад...
На сайте c 09.11.2008
Сообщений: 83
забываю что здесь не только макс
На сайте c 17.11.2007
Сообщений: 317
Самара/Москва
А лучше настрой горячие клавиши так будет удобнее и быстрее в работе


aVpYFg0.jpg
На сайте c 05.04.2008
Сообщений: 109
вот на эту кнопку, если не вынесена на панели инструментов, то в edit


gx1woJir.jpg
На сайте c 05.04.2008
Сообщений: 109
и не забудь стены выделить, кот. объединить собираешься
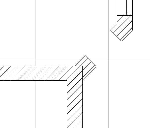
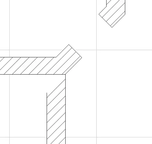
На сайте c 18.03.2008
Сообщений: 267
ну вот это мне надо к примеру слить, не получается этой функцией...
На сайте c 05.04.2008
Сообщений: 109
дак они у тебя сгрупированы в 2 разные группы., сначала разгрупируй, и делай с ними что хочешь


Молодец объявляю благодарность (Antc6)
На сайте c 25.05.2011
Сообщений: 238

как состыковать три стены

всё время одна выделяется, как сделать единый узел

На сайте c 25.10.2013
Сообщений: 5

kotikmarsyuta, нужно чтоб оси трёх стен пересекались в одной точке

 

Читают эту тему: