WIP Dogeva (интерьерные визы)

Автор
Сообщение
На сайте c 05.01.2020
Сообщений: 8153
Ну вот я как раз про это, недавно в ванне была прям цепочка из мебели и сантехники, короб инсталляции пришлось 700 делать, я мебельшикам написала, чтоб они мне до сантиметра все размеры расписали под технику, штаб потом колонна вошла.
На сайте c 28.02.2017
Сообщений: 2977
Omsk
Цитата IK86:
В таких критических местах

Хз почему, но все мои дизайны состоят из критических мест. Отсюда мысль - либо нужно научиться оформлять это всё в чертежи, чтобы любой подрядчик понял мой замысел, либо переучиваться на более универсальное проектирование.

Вот тут у меня 4 помещения в связке, и на счету каждый сантиметр. 

Цитата Катерина135:

я мебельшикам написала

Это в ситуации когда на этапе проектирования уже есть подрядчики на мебель и ремонт, а если их нет? 

На сайте c 05.01.2020
Сообщений: 8153
Цитата Dogeva:
Это в ситуации когда на этапе проектирования уже есть подрядчики на мебель и ремонт, а если их нет? 

в любую фирму звонишь, собираешь несколько мнений. я своим отправляю, да. потом в процессе работы у тебя уже копилка своих менеджеров есть. даже если заказ у них оформлять не будешь, все равно тебя проконсультируют. 

На сайте c 02.07.2014
Сообщений: 4439
Ярославль, Москва
Цитата Dogeva:

И пусть потом заказчик ищет стиралку шириной 56см, когда в проекте красиво стоит стандартная на 60...

Не он, а ты. Это же ты поставила её, по своим чертежам. Почему он должен искать?

На сайте c 26.06.2012
Сообщений: 626
Белгород

Цитата Dogeva:
Хз почему, но все мои дизайны состоят из критических мест. Отсюда мысль - либо нужно научиться оформлять это всё в чертежи

Нужно обязательно научиться оформлять в чертежи, а лучше наймите пока хорошего чертежника который шарит в технологии работ. Эти знания они ведь с шишками набиваются, не обязательно это самому делать. Делегируйте пока, а когда после нескольких проектов появиться понимание, то можете и сами эту работу выполнять, если конечно захотите потом. 

Цитата ck_petya:
Не он, а ты

Вот я и говорю надо на берегу договариваться какова зона ответственности. А то потом больно будет))))

Цитата Катерина135:
в любую фирму звонишь, собираешь несколько мнений. я своим отправляю, да. потом в процессе работы у тебя уже копилка своих менеджеров есть. даже если заказ у них оформлять не будешь, все равно тебя проконсультируют. 

И тут кстати надо учесть момент что возможно придется поездить по этим салонам, возможно побывать на производстве. Вообщем все это время и деньги. И тут встает вопрос а заложено ли это время в бюджет и за чей счет весь этот праздник). Понимаю конечно что это вроде как обучение и вложение, но все таки.

На сайте c 17.03.2020
Сообщений: 3704
spb
Цитата Dogeva:
Это в ситуации когда на этапе проектирования уже есть подрядчики на мебель и ремонт, а если их нет? 

Это стандартная технология проектирования: 

1. определяется, что необходимо иметь в каждом помещении (или зоне помещения) - мебель, оборудование, освещение и т.п. Соответственно - определяются габариты этого всего и зоны доступа, обслуживания, вся эргономика

2. мебель и оборудование размещаются в соответствии с данными п. 1. Определяется, какие места критичны, если что-то поедет в размерах, или где надо предусмотреть запас на возможную замену мебели/оборудования

3. на чертеже (или схеме) указываются размеры всех критических зон, ну и остальное тоже - мы получаем отправные контуры для финишного слоя отделки

4. от поверхности финишного слоя идем "вглубь" - например: плитка с клеем (обычно 10+10 мм.), гипсокартон 1 или 2 слоя (13 мм. или 25 мм.), стойка каркаса (50, 75 или 100 мм.), гипсокартон (13 или 25 мм.), шпаклевка и окраска (обычно 3-7 мм.) - вот получили общую толщину перегородки с отделкой например.

5. если есть готовые несдвигаемые конструкции/поверхности - то идем таким же способом от них "в помещение", и получаем контур отделки. Проверяем, как влазит наше все оборудование и мебель. Если надо - даем указания ломать или корректируем расстановку у себя

То есть какую-то базу по технической части иметь желательно. Иначе процесс будет долгим и мучительным. И есть опасность поддасться красноречию прораба и согласиться на решения, удобные/выгодные ему, но не подходящие вам как заказчику

На сайте c 28.02.2017
Сообщений: 2977
Omsk

Вопрос про выключатели. Есть санузел с основным светом и подсветкой. Что включается из коридора, а что изнутри? Или оба должны быть продублированы и там и там?

И ещё про потолок. Условная высота до плиты 2950, в санузле хочу сделать 2700, чтобы плитка без обрезки. При этом есть ниша для подсветки и ниша для встроенного карниза для шторки. 250 для этих ниш же дофига? Мне нужно там делать ещё какие-то опуски из ГКЛВ? И это всё на сечениях и развёртках показывать?

И расскажите вообще про подсветку зеркал в санузлах, какую вы делаете? По опыту подсветка за зеркалом нефункциональна, нужно чтобы светило прям в лицо. По дизайну у меня зеркало 80х120 в металлической раме, я таких не видела со встроенной подсветкой спереди, это ещё какие-то подвесы делать? Но чтоб светили тоже в лицо, а не вниз, но при этом не слепили... 

На сайте c 02.07.2014
Сообщений: 4439
Ярославль, Москва

Отдельно смонтировал бра над местом, где должно висеть зеркало. Разбил-поменял, а подсветка на месте осталась.

Выключатель снаружи на основной свет, бра включаются изнутри.

У товарища все выключатели изнутри (основной свет, бра, вытяжка)

На сайте c 28.02.2017
Сообщений: 2977
Omsk
Цитата ck_petya:
вытяжка

Оуч, я этот момент что-то вообще упустила... Себе делала просто решётку, без вентиляторов

На сайте c 02.07.2014
Сообщений: 4439
Ярославль, Москва
Цитата Dogeva:

Оуч, я этот момент что-то вообще упустила... Себе делала просто решётку, без вентиляторов

В санузле поставил параллельно с основным светом на один выключатель. В ванной - отдельный выключатель на вытяжку, вышел - включил- проветрил.

На сайте c 25.10.2009
Сообщений: 998
Сочи
Цитата Dogeva:

И ещё про потолок. Условная высота до плиты 2950, в санузле хочу сделать 2700, чтобы плитка без обрезки. При этом есть ниша для подсветки и ниша для встроенного карниза для шторки. 250 для этих ниш же дофига? Мне нужно там делать ещё какие-то опуски из ГКЛВ? И это всё на сечениях и развёртках показывать?

250 дофига. Создавая нишу, нужно руководствоваться тем, что в нее легко пройдет рука маляра и его шпатель.  Чем шире ниша, тем глубже ее можно сделать. Согните из картонки нишу нужной вам глубины/ширины, возьмите что-то похожее на шпатель (кухонную лопатку?smiley-biggrin.gif) и попробуйте  "нанести" шпаклевку/краску. Удобно? Особенно если это у стены, а не в центре потолка.

Узлы по уму надо показать. Когда горит/некогда, свистните картинку из гуглов по запросу "ниша гкл подсветка чертеж" и просто вставьте ее).

По свету да, основной свет и вытяжка снаружи, все остальные подсветки - внутри, где-нить у раковины вместе с розеткой для фена/бритвы/чего-то там.

По подсветке в лицо - да нет однозначного правила светить в лицо, если основной заливающий свет с потолка яркий, не дает резких теней и на нем не сэкономили. По-моему, женщины сейчас не красятся в туалете). Если зеркало просто в раме - да пусть будет просто в раме, без всяких подсветок, если она по дизайну не нужна.

На сайте c 14.06.2012
Сообщений: 16823
Москва
Цитата Dogeva:
Вот тут у меня 4 помещения в связке, и на счету каждый сантиметр. 

Да ванны нафиг не нужны. Выкинь её, подними поддон из плитки, сделай трап. Это удобно для пожилых, да и для себя уже. Ограждение не надо, в него только руками упираться будешь и мыть его постоянно. Шторка будет норм.

Если это санузел в тесной квартире, то заодно в душе получишь место для раскладной сушилки белья. И сам санузел визуально станет больше, ванна объём сьедает и хлам под собой хранит.

21 век, а люди ваннами страдают до сих пор, ноги задирают. И кабины душевые тоже должны быть преданы анафеме. Эти 90x90 хрен куда засунешь, а в ней тесно, как в метро в час пик.

На сайте c 17.03.2020
Сообщений: 3704
spb
воткнуть ванну часто дешевле, чем нормально обустроить душ :)
На сайте c 14.06.2012
Сообщений: 16823
Москва

Ой да чо там делать, плитки надо столько же, сколько под ванну. Ну на борт один квадрат заложи, с подрезкой. Газобетонных блоков в подиум, бетона немного залить это дело, трап купить, и от края до края бахнуть душ по всей длине. Всё. Зато комфорта в сто раз больше. Кран и лейка как и были - из стены.
За ванну нормальную больше денег отвалишь, чем надо чтобы подиум собрать. И будешь всю жизнь корячиться в неё перелазить через борт.

Такая идея. На высоту борта не обращайте внимания, тут 30 см. Можно ниже, тут особый случай был, суперэконом увязка с ремонтом от застройщика.

На сайте c 28.02.2017
Сообщений: 2977
Omsk

Что делать с людьми, которые любят закисать в ванной? В идеале я стараюсь впихнуть и душ и ванну, но в данном случае не влазит душ =(

Цитата Agapova:
250 дофига

Ну вот я тоже подумала что дофига. Получается нужно делать короба из ГКЛВ или что? Основной потолок предполагается натяжной, это сами потолочники делают или основная бригада? Или лучше вообще весь потолок из ГКЛВ? Я просто за натяжку в санузлах на случай небольших потопов (был прецедент, просто высохло и всё)

На сайте c 05.01.2020
Сообщений: 8153

Цитата Dogeva:
Что делать с людьми, которые любят закисать в ванной?

насчет закисать в ванне, не знаю, времени жалко) но ванна нужна для деток ) 

Цитата Agapova:
По свету да, основной свет и вытяжка снаружи

я вытяжку делаю на выключатель у зеркала, итого два выключатели внутри - на подсветку зеркала (еще может быть подсветка ниш/полок сюда же добавлена) + вентиляция. 

не снаружи потому, что я даже сама ее включаю по желанию, например, вышла из душа, сразу включила, не выходя за дверь. пока душ принимаешь - не включаю, шумит все равно, бесит 

Цитата Dogeva:

По дизайну у меня зеркало 80х120 в металлической раме, я таких не видела со встроенной подсветкой спереди, это ещё какие-то подвесы делать?

есть подобные. у них просто светящаяся рамка по периметру, выглядит правда не очень. металлический профиль по периметру тебе сделают, если нужно. щас фото прикреплю. у меня такое. вариации такой подсветки спереди разные есть. 

прикреплю тебе еще схемку с распределением включателей для наглядности. в общем, верхний свет я снаружи делаю, весь внутренний и вентилятор внутри. по номерам все увидишь.

На сайте c 25.10.2009
Сообщений: 998
Сочи
Цитата Dogeva:

Ну вот я тоже подумала что дофига. Получается нужно делать короба из ГКЛВ или что? Основной потолок предполагается натяжной, это сами потолочники делают или основная бригада? Или лучше вообще весь потолок из ГКЛВ? Я просто за натяжку в санузлах на случай небольших потопов (был прецедент, просто высохло и всё)

У натяжников сейчас профилей на любой вкус и цвет. Натяжным можно сделать перепад уровней, и подсветку. Например, вот таким профилем

https://om-ek.ru/product/item/profil-lumfer-bp01-bezramnyj-potolok 

Или там задача прям определенные размеры ниши выдержать?

На сайте c 14.06.2012
Сообщений: 16823
Москва
Цитата Dogeva:
Что делать с людьми, которые любят закисать в ванной?

да это исчезающий вид)

На сайте c 28.02.2017
Сообщений: 2977
Omsk
Цитата Agapova:
У натяжников сейчас профилей на любой вкус и цвет. Натяжным можно сделать перепад уровней, и подсветку.

И вот это всё нужно рисовать в проекте или нет? Т.е. можно просто примечаниями написать тут ниша для подсветки, тут карниз, дальше идите к потолочникам, а можно заморочиться и вырисовывать все эти профили в разрезах и развёртках.

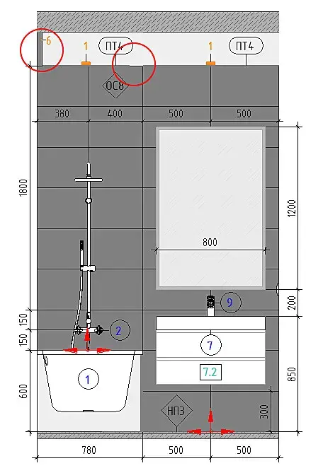
В обучающем курсе есть например сечение по инсталяции, а я вот думаю кому оно нафиг надо? Просто чтобы было и смотрелось солидно? 

Цитата Agapova:

Или там задача прям определенные размеры ниши выдержать?

Не, это учебный проект. Взяла реальную квартиру за основу и рисую как бы я её сделала для себя. Задача научиться грамотно оформлять чертежи и набить руку в ревите. С электрикой и техническими сечениями я прям подвисаю ибо знаний не хватает =( 

На сайте c 14.06.2012
Сообщений: 16823
Москва
Цитата Катерина135:
но ванна нужна для деток )

Ннну... хз. совсем младенцев купать можно и в мелкой пластиковой. А кто постарше,... да в баню это всё, на будущее душ важней.

Читают эту тему: