WIP | 2894042789

Автор
Сообщение
На сайте c 25.01.2019
Сообщений: 37
中国

друзья

Я верный игрок рендеринга

Но моя способность делать проекты не очень хорошая

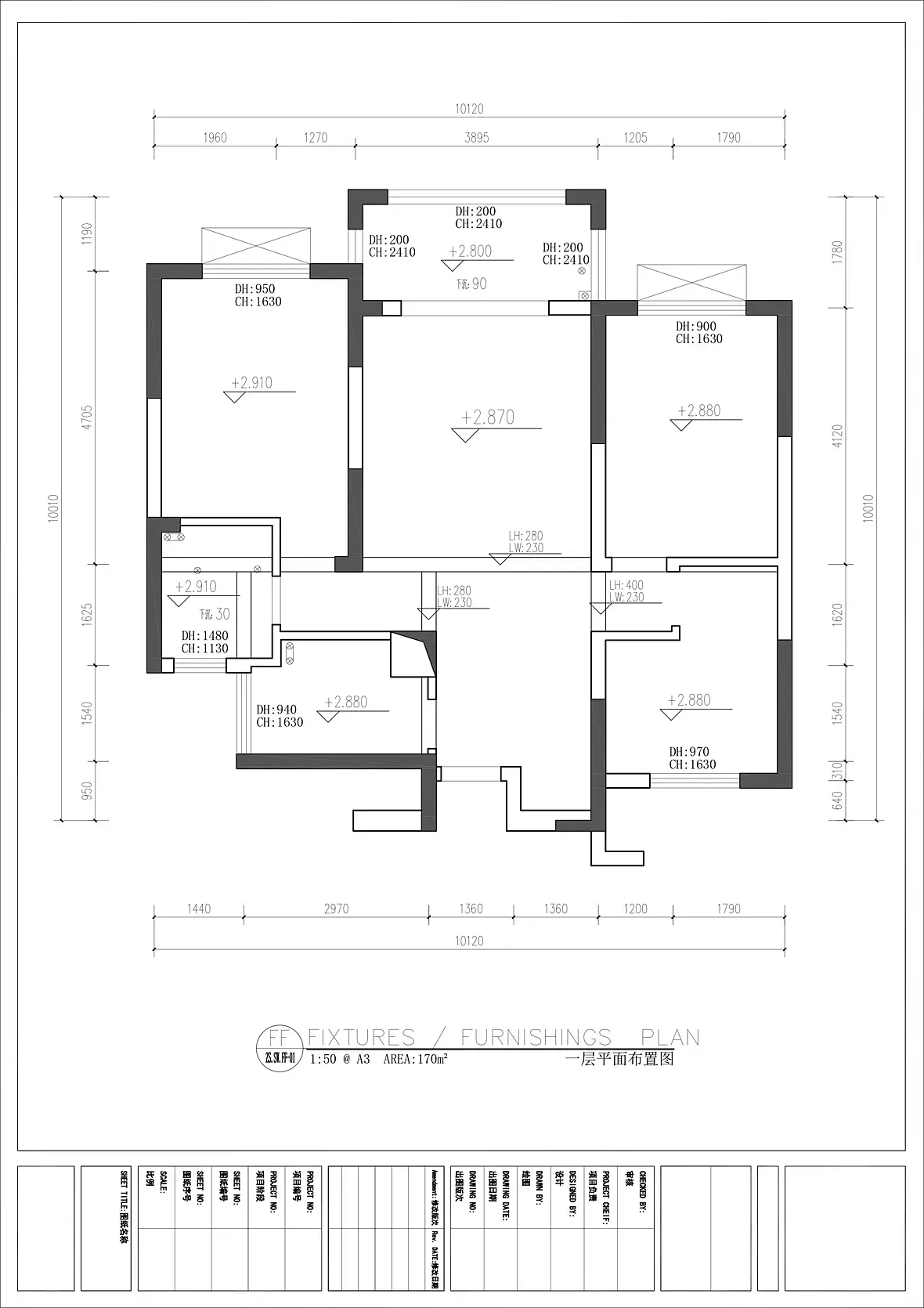
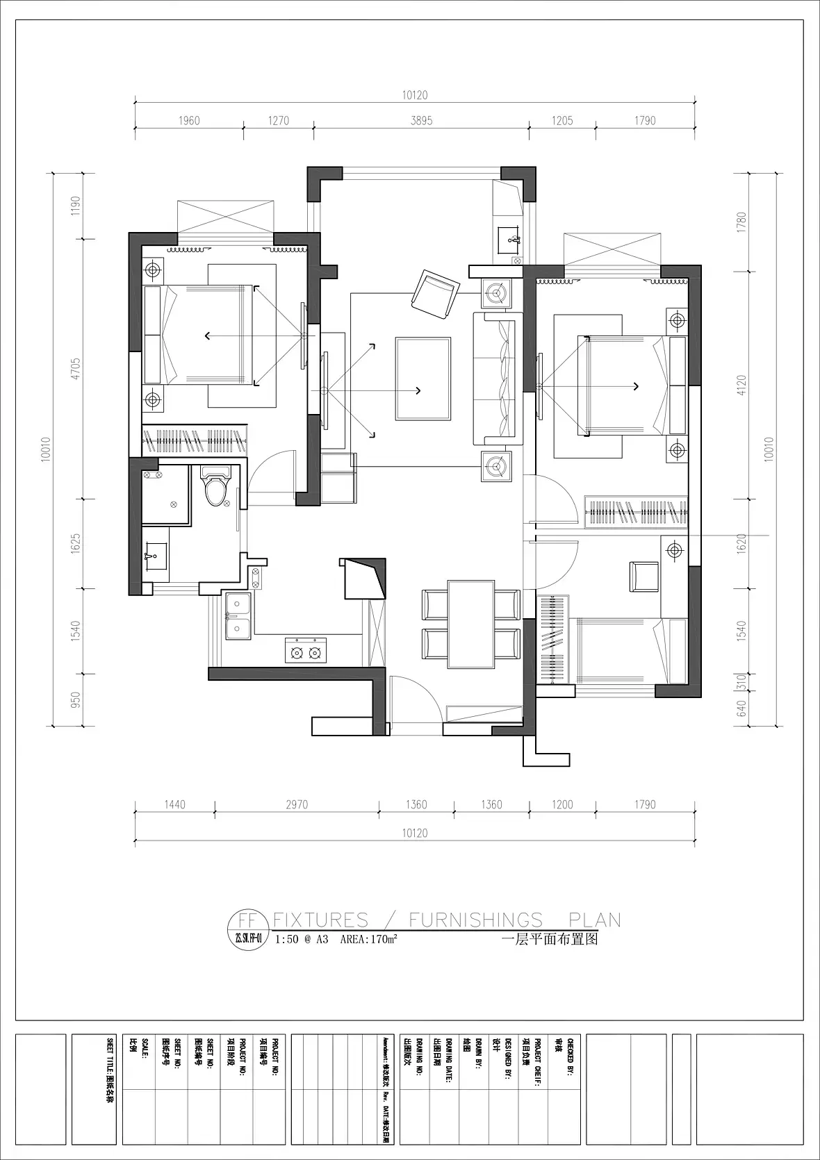
Можете ли вы помочь мне увидеть эту планировку мебели?

Это возможно? Нужно изменить некоторые места?

Моя способность играть в 3damx неплохая, но моя способность находить решения - это только начало

Спасибо вам всем

DH означает, что нижняя часть окна находится над землейCH - высота окна

Спасибо вам всем

Два квадрата были отмечены в двух квадратах над окном, где находится кондиционер

Черная заполненная часть - это место, где ее нельзя удалить

Я надеюсь, что каждый может помочь мне, посмотреть, может ли это разумно использовать пространство, или скажите мне хороший способ, спасибо

Дом на 28 этаже, верхний этаж

На сайте c 15.03.2015
Сообщений: 125
Оттуда


Account is banned

Дата выдачи:
06.08.2024 17:58:08


Пожизненный бан
штош неплохого игрока в тридэмакс мы нашли,осталось найти такого же игрока в автокадsmiley-biggrin.gif
На сайте c 02.07.2014
Сообщений: 4448
Ярославль, Москва
Планировка идеально, отдавайте в производство
На сайте c 07.11.2014
Сообщений: 550

Раковина на балконе?... 

На сайте c 27.02.2010
Сообщений: 3664
Херсон,Украина
Цитата zyuma:
Раковина на балконе?...

Возможно, этот "балкон" - домашнее место для молитвы, а раковина (возможно, напольная), чтобы омывать руки/лицо/ноги, у кого как принято, согласно вероисповеданию.

Я тоже сначала удивилась раковине, но, логически подумав и вторично обратив внимания на иероглифы на чертеже - это единственное нормальное объяснение для моей субъективной узколобости...

На сайте c 07.11.2014
Сообщений: 550
Цитата 2894042789:
Спасибо вам всем

Hey there! Do you speak English? Can you, please, explain the placement of the sink on the balcony (or whatever that room in the upper part is)? It creates some confusion for Russian minds :))

*
*
UPDATE:
Цитата feles:
Возможно, этот "балкон" - домашнее место для молитвы

Поинтересовалась у своего китайского друга, он говорит - это похоже на постирочную, так часто в Китае делается. Прямо там устанавливаются стиралки, раковины, шкафы, и всё белье сушится там же на солнышке отлично. Каааачмарь)))

Я также уточнила насчет трубопровода, а трубы у них снаружи зданий устанавливают, так что это не проблема. Вынос мозга, короче. Но посмотрим, что этот наш новый друг ответит, очень интересно :))

На сайте c 25.01.2019
Сообщений: 37
中国

Цитата zyuma:
Цитата 2894042789:
Спасибо вам всем

Hey there! Do you speak English? Can you, please, explain the placement of the sink on the balcony (or whatever that room in the upper part is)? It creates some confusion for Russian minds :))

UPDATE:
Цитата feles:
Возможно, этот "балкон" - домашнее место для молитвы, а раковина (возможно, напольная), чтобы омывать руки/лицо/ноги, у кого как принято, согласно вероисповеданию.

Поинтересовалась у своего китайского друга, он говорит - это похоже на постирочную, это часто в Китае делается. Прямо там устанавливаются стиралки, раковины, шкафы, и всё белье сушится там же на солнышке отлично. Каааачмарь)))

Я также уточнила насчет трубопровода, а трубы у них снаружи зданий устанавливают, так что это не проблема. Вынос мозга, короче. Но посмотрим, что этот наш новый друг ответит, очень интересно :))

Oh, my friends! The sink on the balcony is for mops

Цитата feles:
Цитата zyuma:
Раковина на балконе?...

Возможно, этот "балкон" - домашнее место для молитвы, а раковина (возможно, напольная), чтобы омывать руки/лицо/ноги, у кого как принято, согласно вероисповеданию.

Я тоже сначала удивилась раковине, но, логически подумав и вторично обратив внимания на иероглифы на чертеже - это единственное нормальное объяснение для моей субъективной узколобости...

Oh, my friends! The sink on the balcony is for mops

На сайте c 07.11.2014
Сообщений: 550
Цитата 2894042789:
Oh, my friends! The sink on the balcony is for mops

Whoa. But what is the point of sacrificing such a prime space of the apartment for a utility sink? Is that a laundry room then? Is it a project in China?

На сайте c 25.01.2019
Сообщений: 37
中国

Цитата zyuma:
Цитата 2894042789:
Oh, my friends! The sink on the balcony is for mops

Whoa. But what is the point of sacrificing such a prime space of the apartment for a utility sink? Is that a laundry room then? Is it a project in China?

Oh my friend! Yes, this is a project in China

Цитата zyuma:
Цитата 2894042789:
Oh, my friends! The sink on the balcony is for mops

Whoa. But what is the point of sacrificing such a prime space of the apartment for a utility sink? Is that a laundry room then? Is it a project in China?

I also think it's a waste of space, but if you have a good idea, can you tell me?

Цитата 2894042789:

Цитата zyuma:
Цитата 2894042789:
Oh, my friends! The sink on the balcony is for mops

Whoa. But what is the point of sacrificing such a prime space of the apartment for a utility sink? Is that a laundry room then? Is it a project in China?

Oh my friend! Yes, this is a project in China

Цитата zyuma:
Цитата 2894042789:
Oh, my friends! The sink on the balcony is for mops

Whoa. But what is the point of sacrificing such a prime space of the apartment for a utility sink? Is that a laundry room then? Is it a project in China?

I also think it's a waste of space, but if you have a good idea, can you tell me?

Because this is my first time to make a plan, there are many problems in it

Цитата 尤玛:
引用2894042789
哦,我的朋友们!阳台上的水槽是拖把的

哇哦 但是,牺牲公寓如此大的空间作为公用水槽的意义何在?那是洗衣房吗?这是在中国的项目吗?

Oh my friend! In small cities in China, many families put washing machines and pools on the balcony, which is half a laundry room

Цитата 尤玛:
引用2894042789
哦,我的朋友们!阳台上的水槽是拖把的

哇哦 但是,牺牲公寓如此大的空间作为公用水槽的意义何在?那是洗衣房吗?这是在中国的项目吗?

Oh my friend! In fact, it's impossible because the bathroom is too small for the washing machine

если у вас есть хороший вариант, скажите, пожалуйста, спасибо!

этот дом может быть разрушен, кроме стены с черным наполнителем

Я переводчик из Google, если есть место, где не сказать, пожалуйста, извините

https://dropmefiles.com/l5zyX  

это дом CAD

если всем интересно

На сайте c 04.09.2008
Сообщений: 15068
Уфа

просьба писать на русском языке

или дублировать на русском

форум русскоязычный

На сайте c 25.01.2019
Сообщений: 37
中国

Цитата 奈特:

请用俄语写

或俄语重复

俄语论坛

Ой! Мне жаль

Цитата 奈特:

请用俄语写

或俄语重复

俄语论坛

Они сказали мне говорить по-английски, поэтому я говорю только по-английски

Цитата 奈特:

请用俄语写

或俄语重复

俄语论坛

О мой друг! очень жаль

Бассейн над балконом предназначен для мытья швабр

Это набор единиц в Китае, дом находится на 28 этаже, верхний этаж

Поскольку ванная комната в этом доме сравнительно небольшая, я спроектировал стиральную машину и бассейн для швабры на балконе.

На самом деле это первое решение, которое я сделал

Так что в этом есть много недостатков, я надеюсь, что каждый может помочь мне увидеть, если есть лучшая идея, пожалуйста, скажите мне

Этот дом не может быть снесен, кроме стены с черным заполнением. Я думаю, что все другие стены могут быть снесены.

https://dropmefiles.com/l5zyX  

Это ссылка для загрузки cad. Если у всех есть идея получше, скажите, пожалуйста, спасибо

На сайте c 09.05.2016
Сообщений: 1203
Ukraine. Kiev.
Китай- современная супер держава. Но как я понял- там тоже есть дятлы. Дятлы распространяются по миру- капец.
На сайте c 25.01.2019
Сообщений: 37
中国

Цитата Arch-magic:
Китай- современная супер держава. Но как я понял- там тоже есть дятлы. Дятлы распространяются по миру- капец.

Что вы имеете в виду?

Цитата 弓魔法:
中国是现代超级大国。但据我了解,也有啄木鸟。啄木鸟遍布世界各地-羽扇。

Кажется, у моего Google Translate проблема

На сайте c 27.02.2010
Сообщений: 3664
Херсон,Украина

Цитата Arch-magic:
Китай- современная супер держава. Но как я понял- там тоже есть дятлы. Дятлы распространяются по миру- капец.

Вы аккуратнее с такими выражениями - гугл выдаст перевод для "распространяется". Про дятлов человек может не понять, зато он знает, что сейчас распространяется по миру и может обидеться :-)
Цитата 2894042789:
Что вы имеете в виду?

Я думаю, автор цитаты имел в виду разницу между мировоззрением Запада и Востока. Нам не понять, почему на балконах устанавливают швабры и стиральные машинки, а водопроводные трубы расположены снаружи здания.

Но это не значит, что Ваш проект плохой! Просто у нас стандарты другие и мы не можем оценить весь Ваш труд. И это форум о 3D-graphics. Если Вы покажете 3D ready pictures of interior - будет больше откликов.

(проверила гугл-переводчик - перевод на английский корректный :-) )

Цитата 2894042789:
Цитата 弓魔法: 中国是现代超级大国。但据我了解,也有啄木鸟。啄木鸟遍布世界各地-羽扇。 Кажется, у моего Google Translate проблема

I have checked your translation - nothing wrong with Google.

"Woodpeckers" (yes, a birds) - is a common name used by slavic people and adressed to another strange and out of their own understanding people. 

Again, nothing personal, - it is all about the difference between East and West culturies.

To Nightt: Я всё проверила, всё работает в гугле! Вот перевод из гугля:

Я проверил ваш перевод - ничего плохого в Google.

«Дятлы» (да, птицы) - это распространенное имя, используемое славянскими людьми и адресованное другим странным и непонятным им людям.

Опять же, ничего личного - все дело в разнице культур между Востоком и Западом.

На сайте c 25.01.2019
Сообщений: 37
中国
Цитата 恶臭:

引用Arch-magic的话
中国是现代超级大国。但据我了解,也有啄木鸟。啄木鸟遍布世界各地-羽扇。

您在使用此类表达时要格外小心-Google会发布“分布式”的翻译。一个人可能不了解啄木鸟,但他知道他现在正在世界范围内传播,并且可能会冒犯:-)
引用2894042789
你有什么考虑?

我认为报价的作者已经想到了西方和东方世界观之间的差异。我们不明白为什么在阳台上安装了拖把和洗衣机,而水管却位于建筑物外。

但这并不意味着您的项目很糟糕!我们只有不同的标准,我们无法评估您的所有工作。这是一个有关3D图形的论坛。如果您显示3D就绪的内部图片-将会有更多响应。

(经检查的谷歌翻译器-英语翻译正确:-))

引用2894042789
Quote据弓魔法:中国是现代超级大国。但据我了解,,也有啄木鸟。啄木鸟遍布世界各地-羽扇。

我已经检查了您的翻译-Google没问题。

“啄木鸟”(是的,是鸟)-是斯拉夫民族常用的名字,是另一个陌生人,出于自己的理解而得名。 

同样,没有什么私人的,这完全是东西方文化之间的差异。

To Nightt:我检查了所有内容,一切都在Google中运行!这是谷歌的翻译:

我检查了您的翻译-Google没问题。

“啄木鸟”(是,鸟)是斯拉夫人常用的名字,指的是其他陌生而又不可理解的人。

再说一次,没有什么私人的-都是关于东西方文化的差异。

Хорошо! Ясно спасибо
Читают эту тему: