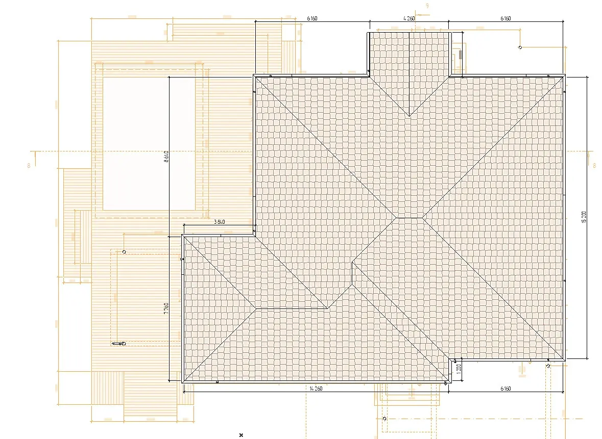
Показ-отображение нижнего этажа на плане верхнего.

Автор
Сообщение
На сайте c 20.07.2015
Сообщений: 135

Здравствуйте!На плане крыше надо чтобы было видно 1й этаж.Как это настроить.

(то что фоновой ссылкой, надо в плане на виде "с крыши"

Читают эту тему: